Louer Résultats de votre recherche Détail de l'annonce

Location Appartement 3 pièces de 66m² à 748 EUR/mois à REZE

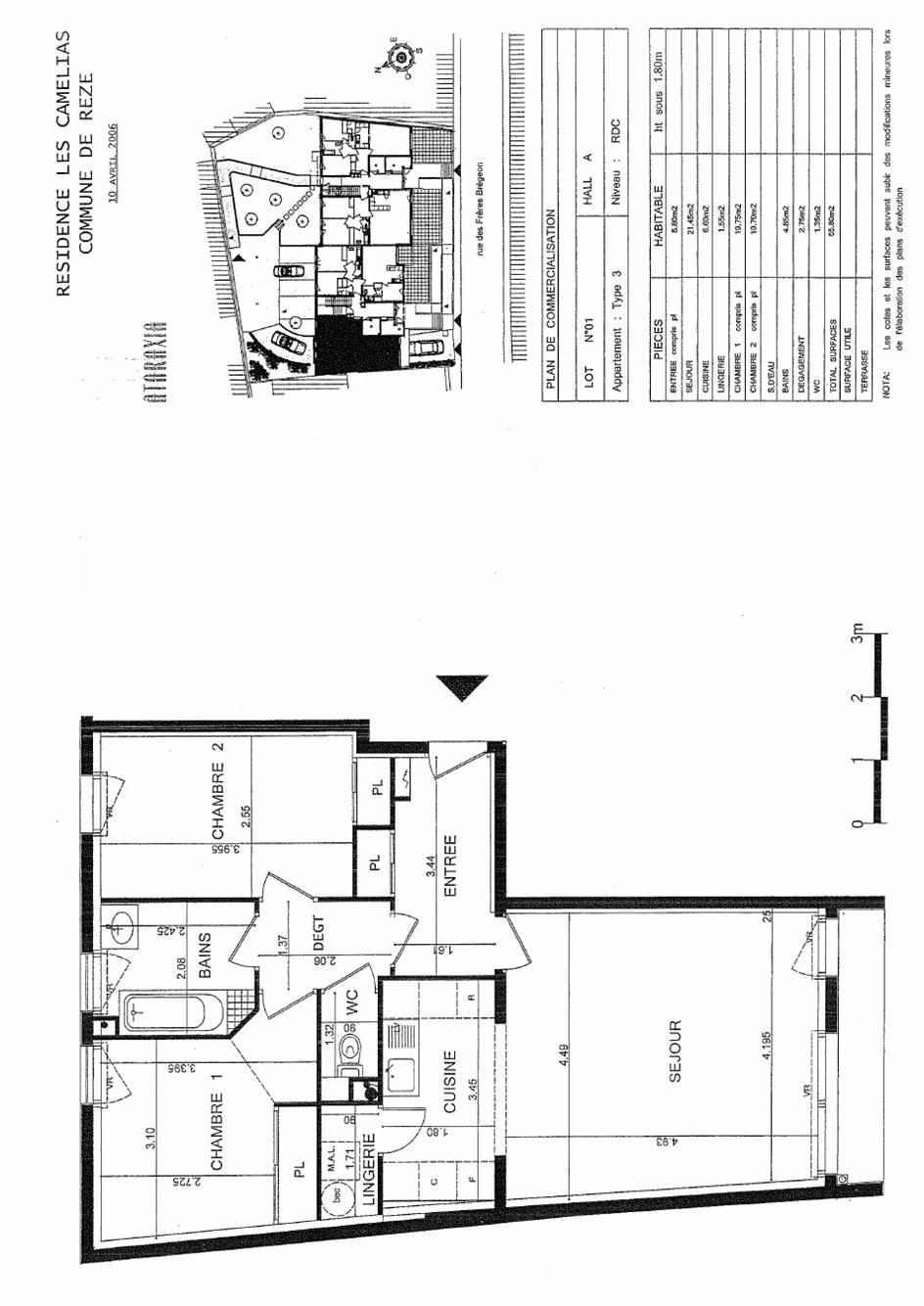
CAMELIAS - Appartement - 3 pièces
A propos de ce bien :

748,32EUR / mois

Charges comprises

  • Appartement
  • 8 RUE DES FRERES BREGEON
    44400 REZE
  • 3 pièces
  • 65,8m²
  • Rez-de-chaussée
  • Disponibilité immédiate
  • DPE : D

Ce bien vous est proposé par notre filiale :

AFEDIM Gestion
Mes notes

Ce bien a attiré votre attention ?

Retrouvez vos notes personnelles en vous connectant à votre espace.

Connexion

Pas encore de compte ? Créez un espace utilisateur AFEDIM.

Description du logement

REZE - Dans la résidence CAMELIAS, nous vous proposons un appartement T3 d'une superficie de 65m² situé au RDC, comprenant : Une entrée avec placard, un séjour d'environ 21m² avec coin cuisine, deux chambres, une salle de bain avec WC séparées, un dégagement. Au sous-sol, un parking n°6 et une cave n°3. Eau chaude et chauffage individuels électrique. Entretien parties communes, espaces verts communs, compris dans les provisions sur charges mensuelles et donnant lieu à une régularisation annuelle. Les honoraires de location TTC (à la charge du locataire) incluent le montant de rédaction des états des lieux facturé pour197 euros TTC, après réalisation lors de l'entrée dans les lieux. Disponible le 20/07/2025. Pour plus de détails sur ce logement, vous pouvez consulter la fiche descriptive de ce bien, sur votre site internet AFEDIM


Voir le plan du lot


Numéro commercial : A01

Référence du bien : 0040448


Caractéristique(s) de l'immeuble

  • Antenne TV


Caractéristique(s) du logement

  • Surface habitable : 65,8 m²

  • Rez-de-chaussée

  • Eau chaude individuelle - électrique

  • Chauffage individuel - Electrique

  • Cuisine : Non aménagée et non équipée

  • Placard(s)


Annexes

  • Parking

  • Cave


Conditions financières

  • Loyer hors charges : 691,32 EUR

  • Montant du dépôt de garantie : 691,32 EUR

  • Provision sur charges : 57 EUR

  • Honoraires TTC à la charge du locataire : 658 EUR

  • Honoraires TTC états des lieux locataire : 197 EUR


Bilan énergétique


Performance du logementGaz à effet de serre

Échelle de performance énergétique s'étalant du niveau A, correspondant à un logement extrêmement performant, au niveau G, correspondant à un logement extrêmement peu performant. Les niveaux F et G sont qualifiés de passoires énergétiques. La consommation (énergie primaire) est de 223 kWh/m².an et est associée à une émission de 7 kg de dioxyde de carbone/m².an (voir détail de l'émission de gaz à effet de serre ci-après), cela correspond à une performance énergétique de niveau D.

Échelle d'émissions des gaz à effet de serre s'étalant du niveau A, correspondant à peu d'émission de CO2, au niveau G, correspondant à des émissions très importantes. Avec une émission de 7 kg de dioxyde de carbone/m²/an, l'émission de gaz à effet de serre est de niveau B.


Date du dernier diagnostic : 24/07/2025
Montant estimé des dépenses annuelles d'énergie pour un usage standard

Les coûts sont estimés en fonction des caractéristiques du logement et pour une utilisation sur 5 usages (chauffage, eau chaude sanitaire, climatisation, éclairage, auxiliaires).


entre 1 190 EUR et 1 670 EUR par an


Prix moyens des énergies indexés sur les années 2021, 2022 et 2023 (abonnements compris)

Etat des risques
Consultez l'état des risques réglementés pour l'information des acquéreurs et des locataires ici
Les informations sur les risques auxquels ce bien est exposé sont disponibles sur le site Géorisques : www.georisques.gouv.fr
Localisation du bien
Vos temps de trajet moyen
  • Ajouter un point d'intérêt personnalisé
 Nature du lieuAdresseDurée du trajet en voitureDurée du trajet en transport en communDurée du trajet en véloDurée du trajet à piedActions    Actions

Ce bien a attiré votre attention ?

Ajoutez vos emplacements préférés pour calculer le temps de trajet depuis ce bien.

Connexion

Pas encore de compte ? Créez un espace utilisateur AFEDIM.

OK X
Nous contacter

Pour toute demande de renseignements complémentaires, demander à visiter le bien ou tout simplement déposer votre dossier de location...
N'hésitez pas à nous contacter !


Autres annonces à proximité