Louer Résultats de votre recherche Détail de l'annonce

Location Appartement 3 pièces de 58m² à 986 EUR/mois à MONTIGNY LES CORMEILLES

METAMORPHOZ - Appartement - 3 pièces
A propos de ce bien :

985,74EUR / mois

Charges comprises

  • Appartement
  • 2 rue Simone VEIL
    95370 MONTIGNY LES CORMEILLES
  • 3 pièces
  • 58m²
  • 4ème étage
  • Disponibilité immédiate
  • DPE : C

Location soumise au respect d'un plafond de ressources/revenus

Calculer le plafond de ressources

Ce bien vous est proposé par notre filiale :

AFEDIM Gestion
Mes notes

Ce bien a attiré votre attention ?

Retrouvez vos notes personnelles en vous connectant à votre espace.

Connexion

Pas encore de compte ? Créez un espace utilisateur AFEDIM.

Description du logement

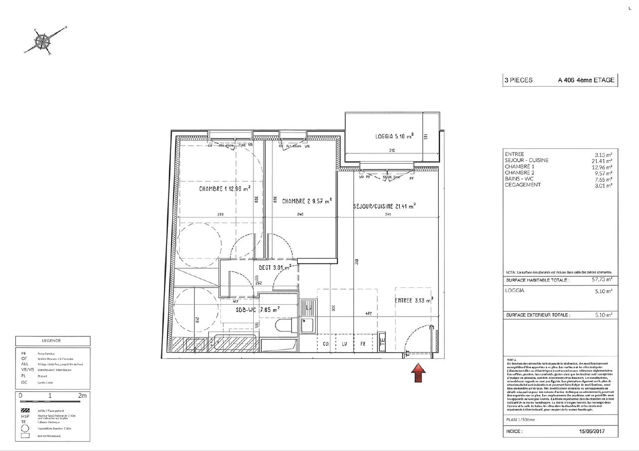
MONTIGNY LES CORMEILLES dans la résidence METAMORPHOZ, nous vous proposons un appartement T3 n°A406 de 57m², au 4ème étage du bâtiment A. Il se compose d'un séjour-cuisine aménagée de 21m² donnant sur une loggia, d'une salle de bain avec WC et de deux chambres. Une place de parking n°26 est également à disposition. Chauffage gaz. Eau froide et chaude, entretiens parties communes et espaces verts compris dans les provisions sur charges mensuelles et donnant lieu à une régularisation annuelle. Disponible le 27/12/2025. Les honoraires de location TTC (à la charge du locataire) incluent le montant de rédaction des états des lieux facturé pour 174euros TTC, après réalisation lors de l'entrée dans les lieux. Pour plus de détails sur ce logement, vous pouvez consulter la fiche descriptive de ce bien, sur notre site internet AFEDIM.


Voir le plan du lot


Numéro commercial : A406

Référence du bien : 0038924


Caractéristique(s) du logement

  • Surface habitable : 58 m²

  • 4ème étage

  • Eau chaude collective - Chaudière à gaz

  • Chauffage collectif - Chaudière à gaz


Conditions financières

  • Loyer hors charges : 847,74 EUR

  • Montant du dépôt de garantie : 847,74 EUR

  • Provision sur charges : 138 EUR

  • Honoraires TTC à la charge du locataire : 580 EUR

  • Honoraires TTC états des lieux locataire : 174 EUR


Bilan énergétique


Performance du logementGaz à effet de serre

Échelle de performance énergétique s'étalant du niveau A, correspondant à un logement extrêmement performant, au niveau G, correspondant à un logement extrêmement peu performant. Les niveaux F et G sont qualifiés de passoires énergétiques. La consommation (énergie primaire) est de 93 kWh/m².an et est associée à une émission de 17 kg de dioxyde de carbone/m².an (voir détail de l'émission de gaz à effet de serre ci-après), cela correspond à une performance énergétique de niveau C.

Échelle d'émissions des gaz à effet de serre s'étalant du niveau A, correspondant à peu d'émission de CO2, au niveau G, correspondant à des émissions très importantes. Avec une émission de 17 kg de dioxyde de carbone/m²/an, l'émission de gaz à effet de serre est de niveau C.


Date du dernier diagnostic : 18/12/2025
Montant estimé des dépenses annuelles d'énergie pour un usage standard

Les coûts sont estimés en fonction des caractéristiques du logement et pour une utilisation sur 5 usages (chauffage, eau chaude sanitaire, climatisation, éclairage, auxiliaires).


entre 264 EUR et 264 EUR par an


Prix moyens des énergies indexés sur l'année 2019 (abonnement compris)

Etat des risques
Consultez l'état des risques réglementés pour l'information des acquéreurs et des locataires ici
Les informations sur les risques auxquels ce bien est exposé sont disponibles sur le site Géorisques : www.georisques.gouv.fr
Localisation du bien
Vos temps de trajet moyen
  • Ajouter un point d'intérêt personnalisé
 Nature du lieuAdresseDurée du trajet en voitureDurée du trajet en transport en communDurée du trajet en véloDurée du trajet à piedActions    Actions

Ce bien a attiré votre attention ?

Ajoutez vos emplacements préférés pour calculer le temps de trajet depuis ce bien.

Connexion

Pas encore de compte ? Créez un espace utilisateur AFEDIM.

OK X
Nous contacter

Pour toute demande de renseignements complémentaires, demander à visiter le bien ou tout simplement déposer votre dossier de location...
N'hésitez pas à nous contacter !