Louer Résultats de votre recherche Détail de l'annonce

Location Appartement 2 pièces de 47m² à 749 EUR/mois à MONS EN BAROEUL

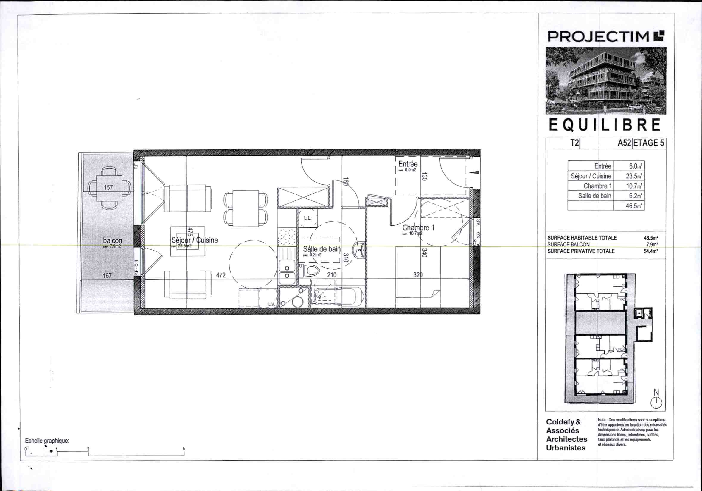
EQUILIBRE - Appartement - 2 pièces
A propos de ce bien :

748,89EUR / mois

Charges comprises

  • Appartement
  • 2 RUE DES ARDENNES
    59370 MONS EN BAROEUL
  • 2 pièces
  • 46,5m²
  • 5ème étage
  • Disponibilité immédiate
  • DPE : C

Location soumise au respect d'un plafond de ressources/revenus

Calculer le plafond de ressources

Ce bien vous est proposé par notre filiale :

AFEDIM Gestion
Mes notes

Ce bien a attiré votre attention ?

Retrouvez vos notes personnelles en vous connectant à votre espace.

Connexion

Pas encore de compte ? Créez un espace utilisateur AFEDIM.

Description du logement

A MONS EN BAROUEL, au cour de la métropole lilloise, en centre-ville, proche de toutes les commodités et entouré d'espaces verts, dans la résidence "EQUILIBRE", un appartement T2 n°A52 (lot n°121) de 46.50m² avec terrasse de 7.90 m² exposée Ouest, situé au 5ème étage du bâtiment A, avec ascenseur. Il comprend une entrée avec placard, un séjour avec cuisine ouverte de 23.50 m², une chambre, une salle de bains avec WC. Au sous-sol, un parking n°16 (lot n°016). Eau chaude, eau froide et chauffage, entretien des parties communes compris dans les provisions sur charges mensuelles et donnant lieu à une régularisation annuelle. Disponible le 3 octobre 2025. Les honoraires de location TTC (à la charge du locataire) incluent le montant de rédaction des états des lieux facturé pour 139 euros TTC, après réalisation lors de l'entrée dans les lieux. Pour plus de détails sur ce logement, vous pouvez consulter la fiche descriptive de ce bien, sur notre site internet AFEDIM.


Voir le plan du lot


Numéro commercial : A52

Référence du bien : 0028747


Caractéristique(s) de l'immeuble

  • Antenne TV

  • Ascenseur


Caractéristique(s) du logement

  • Surface habitable : 46,5 m²

  • 5ème étage

  • Eau chaude collective - Chaudière à gaz

  • Chauffage collectif - Urbain

  • Cuisine : Non aménagée et non équipée

  • Orientation : Ouest


Conditions financières

  • Loyer hors charges : 608,89 EUR

  • Montant du dépôt de garantie : 608,89 EUR

  • Provision sur charges : 140 EUR

  • Honoraires TTC à la charge du locataire : 465 EUR

  • Honoraires TTC états des lieux locataire : 139 EUR


Bilan énergétique


Performance du logementGaz à effet de serre

Échelle de performance énergétique s'étalant du niveau A, correspondant à un logement extrêmement performant, au niveau G, correspondant à un logement extrêmement peu performant. Les niveaux F et G sont qualifiés de passoires énergétiques. La consommation (énergie primaire) est de 122 kWh/m².an et est associée à une émission de 13 kg de dioxyde de carbone/m².an (voir détail de l'émission de gaz à effet de serre ci-après), cela correspond à une performance énergétique de niveau C.

Échelle d'émissions des gaz à effet de serre s'étalant du niveau A, correspondant à peu d'émission de CO2, au niveau G, correspondant à des émissions très importantes. Avec une émission de 13 kg de dioxyde de carbone/m²/an, l'émission de gaz à effet de serre est de niveau C.


Date du dernier diagnostic : 18/09/2025
Montant estimé des dépenses annuelles d'énergie pour un usage standard

Les coûts sont estimés en fonction des caractéristiques du logement et pour une utilisation sur 5 usages (chauffage, eau chaude sanitaire, climatisation, éclairage, auxiliaires).


entre 460 EUR et 670 EUR par an


Prix moyens des énergies indexés sur les années 2021, 2022 et 2023 (abonnements compris)

Etat des risques
Consultez l'état des risques réglementés pour l'information des acquéreurs et des locataires ici
Les informations sur les risques auxquels ce bien est exposé sont disponibles sur le site Géorisques : www.georisques.gouv.fr
Localisation du bien
Vos temps de trajet moyen
  • Ajouter un point d'intérêt personnalisé
 Nature du lieuAdresseDurée du trajet en voitureDurée du trajet en transport en communDurée du trajet en véloDurée du trajet à piedActions    Actions

Ce bien a attiré votre attention ?

Ajoutez vos emplacements préférés pour calculer le temps de trajet depuis ce bien.

Connexion

Pas encore de compte ? Créez un espace utilisateur AFEDIM.

OK X
Nous contacter

Pour toute demande de renseignements complémentaires, demander à visiter le bien ou tout simplement déposer votre dossier de location...
N'hésitez pas à nous contacter !


Autres annonces à proximité