Louer Résultats de votre recherche Détail de l'annonce

Location Appartement 2 pièces de 42m² à 520 EUR/mois à LA MONTAGNE

MAGNOLIAS - Appartement - 2 pièces
A propos de ce bien :

520EUR / mois

Charges comprises

  • Appartement
  • 5 PLACE SIMILIEN GUERIN
    44620 LA MONTAGNE
  • 2 pièces
  • 42,42m²
  • Rez-de-chaussée
  • Disponibilité immédiate
  • DPE : C

Location soumise au respect d'un plafond de ressources/revenus

Calculer le plafond de ressources

Ce bien vous est proposé par notre filiale :

AFEDIM Gestion
Mes notes

Ce bien a attiré votre attention ?

Retrouvez vos notes personnelles en vous connectant à votre espace.

Connexion

Pas encore de compte ? Créez un espace utilisateur AFEDIM.

Description du logement

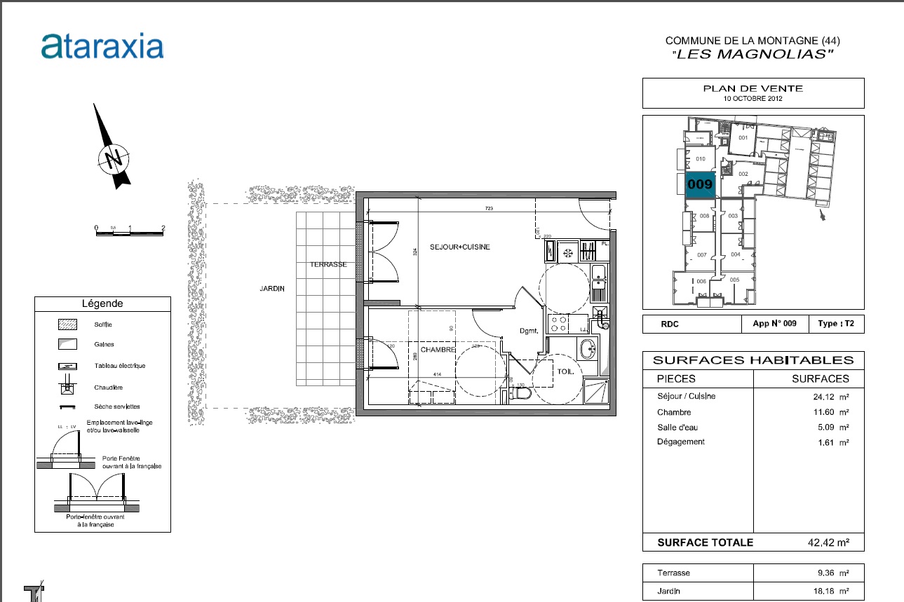
A LA MONTAGNE, dans la Résidence LES MAGNOLIAS, appartement T2 n°009 de 42.42m² au rez-de-chaussée, comprenant une entrée avec placard, un séjour avec coin cuisine de 24.12m² donnant sur une terrasse de 9.36m² et un jardin privatif de 18.18m², une chambre de 11.60m², une salle d'eau avec WC. Au sous-sol, un garage privatif n°G14. Chauffage et eau chaude individuelle gaz. Entretien parties communes, entretien ascenseur, compris dans les provisions sur charges mensuelles et donnant lieu à une régularisation annuelle. Les honoraires de location TTC (à la charge du locataire) incluent le montant de rédaction des états des lieux facturé pour 127 euros TTC, après réalisation lors de l'entrée dans les lieux. Plus de détails sur notre site AFEDIM.


Voir le plan du lot


Numéro commercial : 009

Référence du bien : 0044987


Caractéristique(s) de l'immeuble

  • Ascenseur


Caractéristique(s) du logement

  • Surface habitable : 42,42 m²

  • Rez-de-chaussée

  • Eau chaude individuelle - Chaudière à gaz

  • Chauffage individuel - Chaudière à gaz

  • Orientation : Ouest

  • Placard(s)


Conditions financières

  • Loyer hors charges : 482 EUR

  • Montant du dépôt de garantie : 482 EUR

  • Provision sur charges : 38 EUR

  • Honoraires TTC à la charge du locataire : 428 EUR

  • Honoraires TTC états des lieux locataire : 128 EUR


Bilan énergétique


Performance du logementGaz à effet de serre

Échelle de performance énergétique s'étalant du niveau A, correspondant à un logement extrêmement performant, au niveau G, correspondant à un logement extrêmement peu performant. Les niveaux F et G sont qualifiés de passoires énergétiques. La consommation (énergie primaire) est de 77 kWh/m².an et est associée à une émission de 13 kg de dioxyde de carbone/m².an (voir détail de l'émission de gaz à effet de serre ci-après), cela correspond à une performance énergétique de niveau C.

Échelle d'émissions des gaz à effet de serre s'étalant du niveau A, correspondant à peu d'émission de CO2, au niveau G, correspondant à des émissions très importantes. Avec une émission de 13 kg de dioxyde de carbone/m²/an, l'émission de gaz à effet de serre est de niveau C.


Date du dernier diagnostic : 15/09/2025
Montant estimé des dépenses annuelles d'énergie pour un usage standard

Les coûts sont estimés en fonction des caractéristiques du logement et pour une utilisation sur 5 usages (chauffage, eau chaude sanitaire, climatisation, éclairage, auxiliaires).


entre 370 EUR et 540 EUR par an


Prix moyens des énergies indexés sur les années 2021, 2022 et 2023 (abonnements compris)

Etat des risques
Consultez l'état des risques réglementés pour l'information des acquéreurs et des locataires ici
Les informations sur les risques auxquels ce bien est exposé sont disponibles sur le site Géorisques : www.georisques.gouv.fr
Localisation du bien
Vos temps de trajet moyen
  • Ajouter un point d'intérêt personnalisé
 Nature du lieuAdresseDurée du trajet en voitureDurée du trajet en transport en communDurée du trajet en véloDurée du trajet à piedActions    Actions

Ce bien a attiré votre attention ?

Ajoutez vos emplacements préférés pour calculer le temps de trajet depuis ce bien.

Connexion

Pas encore de compte ? Créez un espace utilisateur AFEDIM.

OK X
Nous contacter

Pour toute demande de renseignements complémentaires, demander à visiter le bien ou tout simplement déposer votre dossier de location...
N'hésitez pas à nous contacter !


Autres annonces à proximité