Louer Résultats de votre recherche Détail de l'annonce

Location Appartement 1 pièce de 42m² à 418 EUR/mois à HENNEBONT

GARDELOUPE - Appartement - 1 pièce
A propos de ce bien :

418EUR / mois

Charges comprises

  • Appartement
  • 13 RUE GERMAINE LE GOFF
    56700 HENNEBONT
  • 1 pièce
  • 42,2m²
  • 2ème étage
  • Disponibilité immédiate
  • DPE : C

Location soumise au respect d'un plafond de ressources/revenus

Ce bien vous est proposé par notre filiale :

AFEDIM Gestion
Mes notes

Ce bien a attiré votre attention ?

Retrouvez vos notes personnelles en vous connectant à votre espace.

Connexion

Pas encore de compte ? Créez un espace utilisateur AFEDIM.

Description du logement

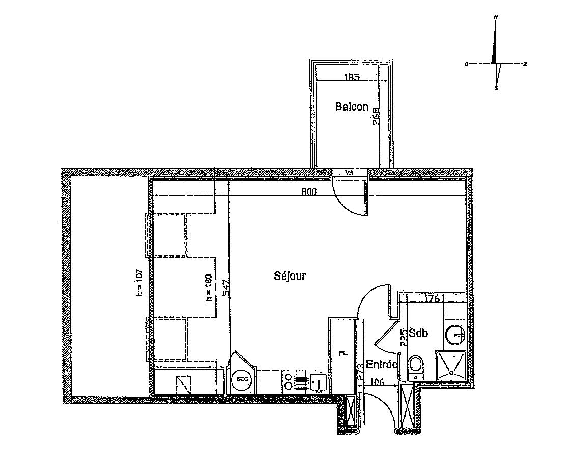
A Hennebont, dans la résidence GARDELOUPE, un appartement T1 n° B34 (lot 126), situé au 3ème étage, d'une surface habitable de 42 m² environ, comprenant : entrée avec placard, séjour ouvrant sur balcon de 4 m² environ avec coin kitchenette équipée d'un meuble évier, deux plaques électriques et réfrigérateur, salle d'eau avec douche, lavabo et wc. Chauffage individuel électrique. Une cave n° 29 (lot 155) et un parking aérien. Robien. Entretien parties communes, entretien ascenseur et espaces verts communs, compris dans les provisions sur charges mensuelles et donnant lieu à une régularisation annuelle. Les honoraires de location TTC (à la charge du locataire) incluent le montant de rédaction des états des lieux facturé pour 126 euros TTC, après réalisation lors de l'entrée dans les lieux. Pour plus de détails sur ce logement, vous pouvez consulter la fiche descriptive de ce bien, sur votre site internet AFEDIM LOCATION.


Voir le plan du lot


Numéro commercial : B34

Référence du bien : 0040346


Caractéristique(s) de l'immeuble

  • Résidence sécurisée

  • Antenne TV

  • Ascenseur

  • Espaces verts


Caractéristique(s) du logement

  • Surface habitable : 42,2 m²

  • Balcon (4,00 m²)

  • 2ème étage

  • Eau chaude individuelle - électrique

  • Chauffage individuel - Electrique

  • Orientation : Est-Ouest

  • Placard(s)


Annexes

  • Cave


Conditions financières

  • Loyer hors charges : 375 EUR

  • Montant du dépôt de garantie : 375 EUR

  • Provision sur charges : 43 EUR

  • Honoraires TTC à la charge du locataire : 340 EUR

  • Honoraires TTC états des lieux locataire : 127 EUR


Bilan énergétique


Performance du logementGaz à effet de serre

Échelle de performance énergétique s'étalant du niveau A, correspondant à un logement extrêmement performant, au niveau G, correspondant à un logement extrêmement peu performant. Les niveaux F et G sont qualifiés de passoires énergétiques. La consommation (énergie primaire) est de 152 kWh/m².an et est associée à une émission de 4 kg de dioxyde de carbone/m².an (voir détail de l'émission de gaz à effet de serre ci-après), cela correspond à une performance énergétique de niveau C.

Échelle d'émissions des gaz à effet de serre s'étalant du niveau A, correspondant à peu d'émission de CO2, au niveau G, correspondant à des émissions très importantes. Avec une émission de 4 kg de dioxyde de carbone/m²/an, l'émission de gaz à effet de serre est de niveau A.


Date du dernier diagnostic : 06/10/2025
Montant estimé des dépenses annuelles d'énergie pour un usage standard

Les coûts sont estimés en fonction des caractéristiques du logement et pour une utilisation sur 5 usages (chauffage, eau chaude sanitaire, climatisation, éclairage, auxiliaires).


entre 560 EUR et 800 EUR par an


Prix moyens des énergies indexés sur l'année 2021 (abonnement compris)

Etat des risques
Consultez l'état des risques réglementés pour l'information des acquéreurs et des locataires ici
Les informations sur les risques auxquels ce bien est exposé sont disponibles sur le site Géorisques : www.georisques.gouv.fr
Localisation du bien
Vos temps de trajet moyen
  • Ajouter un point d'intérêt personnalisé
 Nature du lieuAdresseDurée du trajet en voitureDurée du trajet en transport en communDurée du trajet en véloDurée du trajet à piedActions    Actions

Ce bien a attiré votre attention ?

Ajoutez vos emplacements préférés pour calculer le temps de trajet depuis ce bien.

Connexion

Pas encore de compte ? Créez un espace utilisateur AFEDIM.

OK X
Nous contacter

Pour toute demande de renseignements complémentaires, demander à visiter le bien ou tout simplement déposer votre dossier de location...
N'hésitez pas à nous contacter !