Louer Résultats de votre recherche Détail de l'annonce

Location Appartement 3 pièces de 61m² à 748 EUR/mois à CHARTRES

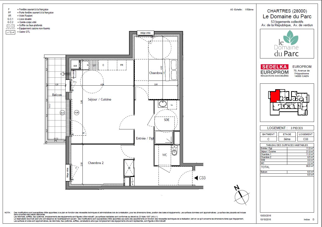
DOMAINE DU PARC - Appartement - 3 pièces
A propos de ce bien :

748EUR / mois

Charges comprises

  • Appartement
  • 32 AVENUE DE LA REPUBLIQUE
    28000 CHARTRES
  • 3 pièces
  • 60,6m²
  • 3ème étage
  • Disponibilité immédiate
  • DPE : C

Location soumise au respect d'un plafond de ressources/revenus

Calculer le plafond de ressources

Ce bien vous est proposé par notre filiale :

AFEDIM Gestion
Mes notes

Ce bien a attiré votre attention ?

Retrouvez vos notes personnelles en vous connectant à votre espace.

Connexion

Pas encore de compte ? Créez un espace utilisateur AFEDIM.

Description du logement

A Chartres, quartier de Rechèvres, proche de la gare, du Parc André Gagnon et à seulement quelques minutes à pieds du centre ville, dans la résidence neuve labelisée BBC "Le Domaine du Parc", nous vous proposons un T3 de 60.60 m² n°C33 situé au 3ème étage avec ascenseur du bâtiment C. Il se compose d'une entrée avec placard, d'une pièce de vie avec cuisine ouverte sur balcon de 6.50m², de deux chambres, d'une salle d'eau et d'un WC indépendant. En annexe, deux parkings n°319-320. Entretien des parties communes, entretien ascenseur et espaces verts communs, compris dans les provisions sur charges mensuelles et donnant lieu à une régularisation annuelle. Les honoraires de location TTC (à la charge du locataire) incluent le montant de rédaction des états des lieux facturé pour 181 euros TTC, après réalisation lors de l'entrée dans les lieux. Pour plus de détails sur ce logement, vous pouvez consulter la fiche descriptive de ce bien, sur votre site internet AFEDIM. Disponibilité immédiate.


Voir le plan du lot


Numéro commercial : C33

Référence du bien : 0034089


Caractéristique(s) du logement

  • Surface habitable : 60,6 m²

  • Balcon (6,00 m²)

  • 3ème étage

  • Eau chaude individuelle - Chaudière à gaz

  • Chauffage individuel - Chaudière à gaz


Annexes

  • Parking


Conditions financières

  • Loyer hors charges : 650 EUR

  • Montant du dépôt de garantie : 650 EUR

  • Provision sur charges : 98 EUR

  • Honoraires TTC à la charge du locataire : 489 EUR

  • Honoraires TTC états des lieux locataire : 183 EUR


Bilan énergétique


Performance du logementGaz à effet de serre

Échelle de performance énergétique s'étalant du niveau A, correspondant à un logement extrêmement performant, au niveau G, correspondant à un logement extrêmement peu performant. Les niveaux F et G sont qualifiés de passoires énergétiques. La consommation (énergie primaire) est de 145 kWh/m².an et est associée à une émission de 29 kg de dioxyde de carbone/m².an (voir détail de l'émission de gaz à effet de serre ci-après), cela correspond à une performance énergétique de niveau C.

Échelle d'émissions des gaz à effet de serre s'étalant du niveau A, correspondant à peu d'émission de CO2, au niveau G, correspondant à des émissions très importantes. Avec une émission de 29 kg de dioxyde de carbone/m²/an, l'émission de gaz à effet de serre est de niveau C.


Date du dernier diagnostic : 31/10/2024
Montant estimé des dépenses annuelles d'énergie pour un usage standard

Les coûts sont estimés en fonction des caractéristiques du logement et pour une utilisation sur 5 usages (chauffage, eau chaude sanitaire, climatisation, éclairage, auxiliaires).


entre 914 EUR et 1 236 EUR par an


Prix moyens des énergies indexés sur les années 2021, 2022 et 2023 (abonnements compris)

Etat des risques
Consultez l'état des risques réglementés pour l'information des acquéreurs et des locataires ici
Les informations sur les risques auxquels ce bien est exposé sont disponibles sur le site Géorisques : www.georisques.gouv.fr
Localisation du bien
Vos temps de trajet moyen
  • Ajouter un point d'intérêt personnalisé
 Nature du lieuAdresseDurée du trajet en voitureDurée du trajet en transport en communDurée du trajet en véloDurée du trajet à piedActions    Actions

Ce bien a attiré votre attention ?

Ajoutez vos emplacements préférés pour calculer le temps de trajet depuis ce bien.

Connexion

Pas encore de compte ? Créez un espace utilisateur AFEDIM.

OK X
Nous contacter

Pour toute demande de renseignements complémentaires, demander à visiter le bien ou tout simplement déposer votre dossier de location...
N'hésitez pas à nous contacter !


Autres annonces à proximité