Louer Résultats de votre recherche Détail de l'annonce

Location Appartement 3 pièces de 61m² à 1 016 EUR/mois à CERGY

ACANTHE - Appartement - 3 pièces
A propos de ce bien :

1 016,45EUR / mois

Charges comprises

  • Appartement
  • 33 AV DES GENOTTES
    95800 CERGY
  • 3 pièces
  • 60,91m²
  • Rez-de-chaussée
  • Disponibilité immédiate
  • DPE : B

Location soumise au respect d'un plafond de ressources/revenus

Calculer le plafond de ressources

Ce bien vous est proposé par notre filiale :

AFEDIM Gestion
Mes notes

Ce bien a attiré votre attention ?

Retrouvez vos notes personnelles en vous connectant à votre espace.

Connexion

Pas encore de compte ? Créez un espace utilisateur AFEDIM.

Description du logement

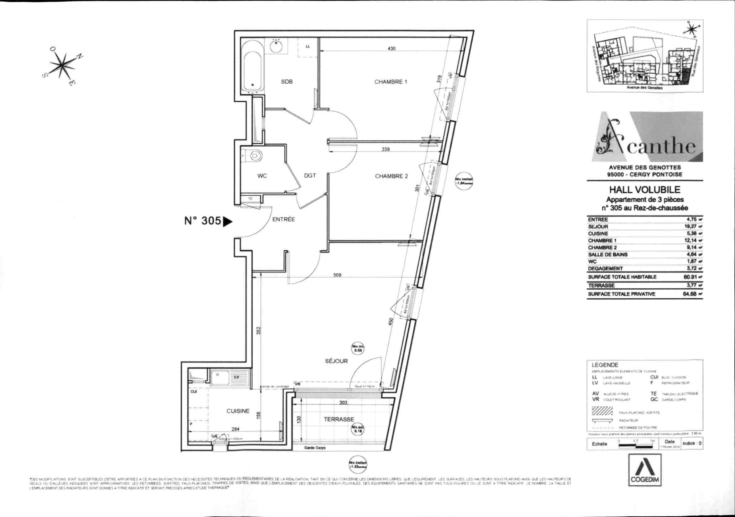
A Cergy, proche de toutes les commodités et entouré d'espaces verts, dans la résidence "ACANTHE", un appartement T3 n°305 de 60.91m² avec terrasse de 3.77m², situé au RDC avec ascenseur. Il comprend une entrée, un séjour avec cuisine ouverte, deux chambres, une salle de bains et un wc. Au sous-sol, deux parkings n°1012 et 1013. Eau chaude, eau froide et chauffage gaz, entretien parties communes, entretien ascenseur et espaces verts communs, compris dans les provisions sur charges mensuelles et donnant lieu à une régularisation annuelle. Le montant des honoraires mentionné inclut le montant des honoraires de location (visite, constitution dossier, bail) facturé directement au locataire pour 609,00 euros TTC et le montant des honoraires de rédaction des états des lieux facturé par AFEDIM Gestion pour 182,00 euros TTC, après réalisation, lors de l'entrée dans les lieux. Le règlement des honoraires état des lieux est à adresser avec le bail signé à AFEDIM Gestion.


Voir le plan du lot


Numéro commercial : 305

Référence du bien : 0028840


Caractéristique(s) de l'immeuble

  • Antenne TV

  • Ascenseur


Caractéristique(s) du logement

  • Surface habitable : 60,91 m²

  • Terrasse (3,77 m²)

  • Rez-de-chaussée

  • Eau chaude collective - Chaudière à gaz

  • Chauffage collectif - Chaudière à gaz

  • Cuisine : Non aménagée et non équipée

  • Orientation : Est

  • Placard(s)


Annexes

  • Parking


Conditions financières

  • Loyer hors charges : 873,45 EUR

  • Montant du dépôt de garantie : 873,45 EUR

  • Provision sur charges : 143 EUR

  • Honoraires TTC à la charge du locataire : 614 EUR

  • Honoraires TTC états des lieux locataire : 184 EUR


Bilan énergétique


Performance du logementGaz à effet de serre

Échelle de performance énergétique s'étalant du niveau A, correspondant à un logement extrêmement performant, au niveau G, correspondant à un logement extrêmement peu performant. Les niveaux F et G sont qualifiés de passoires énergétiques. La consommation (énergie primaire) est de 119 kWh/m².an et est associée à une émission de 23 kg de dioxyde de carbone/m².an (voir détail de l'émission de gaz à effet de serre ci-après), cela correspond à une performance énergétique de niveau B.

Échelle d'émissions des gaz à effet de serre s'étalant du niveau A, correspondant à peu d'émission de CO2, au niveau G, correspondant à des émissions très importantes. Avec une émission de 23 kg de dioxyde de carbone/m²/an, l'émission de gaz à effet de serre est de niveau C.


Date du dernier diagnostic : 12/12/2025
Montant estimé des dépenses annuelles d'énergie pour un usage standard

Les coûts sont estimés en fonction des caractéristiques du logement et pour une utilisation sur 5 usages (chauffage, eau chaude sanitaire, climatisation, éclairage, auxiliaires).


entre 760 EUR et 1 090 EUR par an


Prix moyens des énergies indexés sur l'année 2023 (abonnement compris)

Etat des risques
Consultez l'état des risques réglementés pour l'information des acquéreurs et des locataires ici
Les informations sur les risques auxquels ce bien est exposé sont disponibles sur le site Géorisques : www.georisques.gouv.fr
Localisation du bien
Vos temps de trajet moyen
  • Ajouter un point d'intérêt personnalisé
 Nature du lieuAdresseDurée du trajet en voitureDurée du trajet en transport en communDurée du trajet en véloDurée du trajet à piedActions    Actions

Ce bien a attiré votre attention ?

Ajoutez vos emplacements préférés pour calculer le temps de trajet depuis ce bien.

Connexion

Pas encore de compte ? Créez un espace utilisateur AFEDIM.

OK X
Nous contacter

Pour toute demande de renseignements complémentaires, demander à visiter le bien ou tout simplement déposer votre dossier de location...
N'hésitez pas à nous contacter !