Louer Résultats de votre recherche Détail de l'annonce

Location Appartement 3 pièces de 68m² à 1 198 EUR/mois à BRUNOY

BALCONS DU CENTRE - Appartement - 3 pièces
A propos de ce bien :

1 198EUR / mois

Charges comprises

  • Appartement
  • 36 RUE DE LA POSTE
    91800 BRUNOY
  • 3 pièces
  • 67,9m²
  • 3ème étage
  • Disponibilité immédiate
  • DPE : C

Location soumise au respect d'un plafond de ressources/revenus

Calculer le plafond de ressources

Ce bien vous est proposé par notre filiale :

AFEDIM Gestion
Mes notes

Ce bien a attiré votre attention ?

Retrouvez vos notes personnelles en vous connectant à votre espace.

Connexion

Pas encore de compte ? Créez un espace utilisateur AFEDIM.

Description du logement

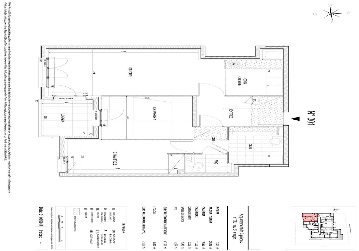
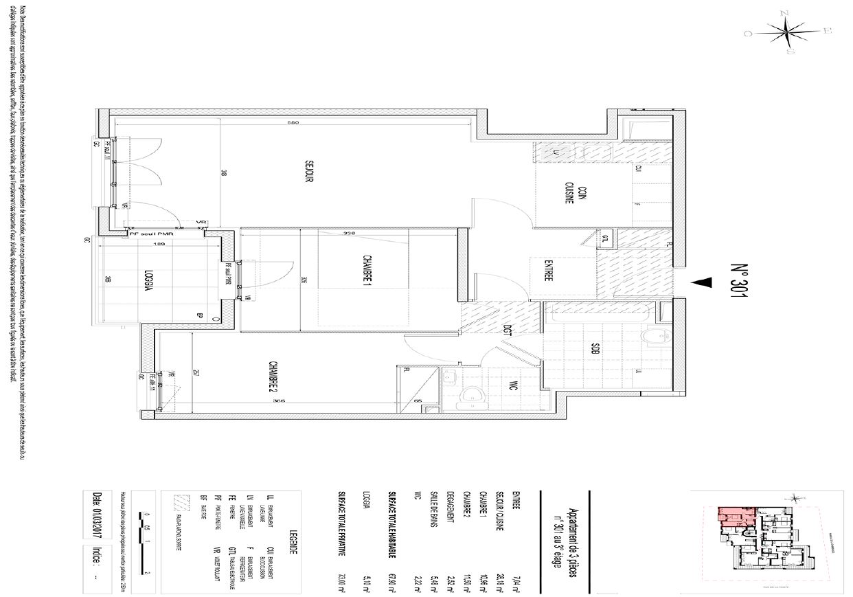
A Brunoy dans la Résidence LES BALCONS DU CENTRE, au 3ème étage, nous vous proposons un appartement T3 n°301 de 67.90m², comprenant une entrée avec placard, un séjour de 28,18m² avec cuisine aménagée et équipée donnant sur une loggia de 5 m², deux chambres dont une avec placard, une salle de bains et WC séparés. Cet appartement dispose d'une place de stationnement au rez-de-chaussée de la résidence n°3. Chauffage, eau chaude, entretien des parties communes compris dans les provisions sur charges mensuelles et donnant lieu à une régularisation annuelle. Les honoraires de location TTC (à la charge du locataire) incluent le montant de rédaction des états des lieux facturé pour 205 euros TTC, après réalisation lors de l'entrée dans les lieux. Pour plus de détails sur ce logement, vous pouvez consulter la fiche descriptive de ce bien, sur notre site internet AFEDIM.


Voir le plan du lot


Numéro commercial : 301

Référence du bien : 0038959


Caractéristique(s) de l'immeuble

  • Antenne TV


Caractéristique(s) du logement

  • Surface habitable : 67,9 m²

  • Loggia (5,00 m²)

  • 3ème étage

  • Eau chaude collective - Chaudière à gaz

  • Chauffage collectif - Chaudière à gaz

  • Placard(s)


Annexes

  • Parking


Conditions financières

  • Loyer hors charges : 937 EUR

  • Montant du dépôt de garantie : 937 EUR

  • Provision sur charges : 261 EUR

  • Honoraires TTC à la charge du locataire : 685 EUR

  • Honoraires TTC états des lieux locataire : 205 EUR


Bilan énergétique


Performance du logementGaz à effet de serre

Échelle de performance énergétique s'étalant du niveau A, correspondant à un logement extrêmement performant, au niveau G, correspondant à un logement extrêmement peu performant. Les niveaux F et G sont qualifiés de passoires énergétiques. La consommation (énergie primaire) est de 75 kWh/m².an et est associée à une émission de 13 kg de dioxyde de carbone/m².an (voir détail de l'émission de gaz à effet de serre ci-après), cela correspond à une performance énergétique de niveau C.

Échelle d'émissions des gaz à effet de serre s'étalant du niveau A, correspondant à peu d'émission de CO2, au niveau G, correspondant à des émissions très importantes. Avec une émission de 13 kg de dioxyde de carbone/m²/an, l'émission de gaz à effet de serre est de niveau C.


Date du dernier diagnostic : 11/09/2025
Montant estimé des dépenses annuelles d'énergie pour un usage standard

Les coûts sont estimés en fonction des caractéristiques du logement et pour une utilisation sur 5 usages (chauffage, eau chaude sanitaire, climatisation, éclairage, auxiliaires).


entre 420 EUR et 630 EUR par an


Prix moyens des énergies indexés sur les années 2021, 2022 et 2023 (abonnements compris)

Etat des risques
Consultez l'état des risques réglementés pour l'information des acquéreurs et des locataires ici
Les informations sur les risques auxquels ce bien est exposé sont disponibles sur le site Géorisques : www.georisques.gouv.fr
Localisation du bien
Vos temps de trajet moyen
  • Ajouter un point d'intérêt personnalisé
 Nature du lieuAdresseDurée du trajet en voitureDurée du trajet en transport en communDurée du trajet en véloDurée du trajet à piedActions    Actions

Ce bien a attiré votre attention ?

Ajoutez vos emplacements préférés pour calculer le temps de trajet depuis ce bien.

Connexion

Pas encore de compte ? Créez un espace utilisateur AFEDIM.

OK X
Nous contacter

Pour toute demande de renseignements complémentaires, demander à visiter le bien ou tout simplement déposer votre dossier de location...
N'hésitez pas à nous contacter !