Louer Résultats de votre recherche Détail de l'annonce

Location Appartement 3 pièces de 60m² à 730 EUR/mois à BEZANNES

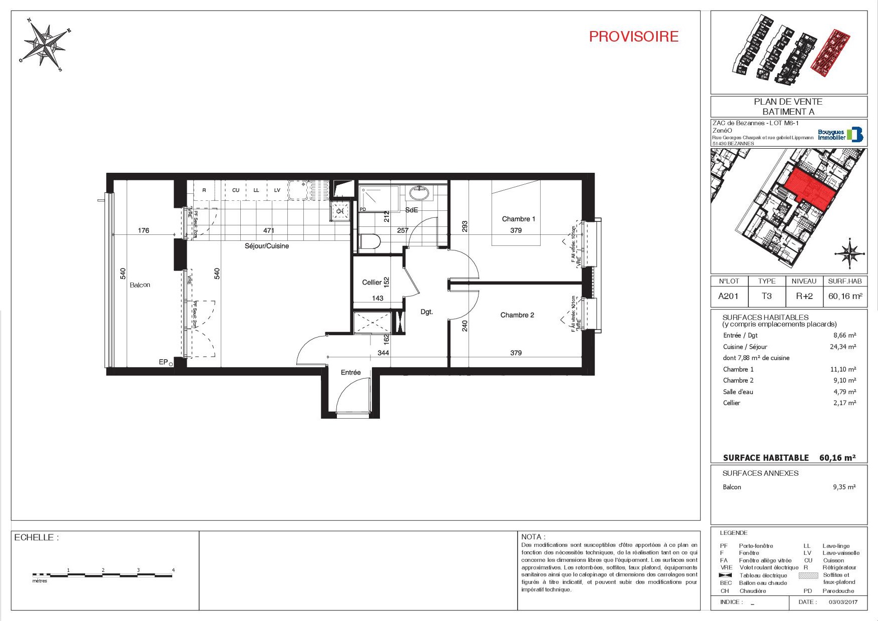
ZENEO - Appartement - 3 pièces
A propos de ce bien :

730,25EUR / mois

Charges comprises

  • Appartement
  • 31 Rue Gabriel Lippman
    51430 BEZANNES
  • 3 pièces
  • 60,16m²
  • 2ème étage
  • Disponible dès le 11/02/2026
  • DPE : C

Location soumise au respect d'un plafond de ressources/revenus

Calculer le plafond de ressources

Ce bien vous est proposé par notre filiale :

AFEDIM Gestion
Mes notes

Ce bien a attiré votre attention ?

Retrouvez vos notes personnelles en vous connectant à votre espace.

Connexion

Pas encore de compte ? Créez un espace utilisateur AFEDIM.

Description du logement

A BEZANNES, dans la résidence "ZENEO" nous vous proposons un appartement de type T3 n°A201 de 60.16 m². Situé au 2eme étage, il comprend : un séjour avec cuisine donnant sur un balcon de 9.35m², deux chambres, une salle d'eau avec WC, un cellier et un dégagement. En extérieur un parking n°13. Eau chaude et chauffage (individuel). Entretien parties communes, entretien ascenseur et espaces verts communs, compris dans les provisions sur charges mensuelles et donnant lieu à une régularisation annuelle. Les honoraires de location TTC (à la charge du locataire) incluent le montant de rédaction des états des lieux facturé pour 180euros TTC, après réalisation lors de l'entrée dans les lieux. Disponible le 08/03/2026. Pour plus de détails sur ce logement, vous pouvez consulter la fiche descriptive de ce bien, sur votre site internet AFEDIM.


Voir le plan du lot


Numéro commercial : A201

Référence du bien : 0038842


Caractéristique(s) du logement

  • Surface habitable : 60,16 m²

  • 2ème étage

  • Chauffage individuel - Chaudière à gaz

  • Cuisine : Non aménagée et non équipée


Conditions financières

  • Loyer hors charges : 637,25 EUR

  • Montant du dépôt de garantie : 637,25 EUR

  • Provision sur charges : 93 EUR

  • Honoraires TTC à la charge du locataire : 481 EUR

  • Honoraires TTC états des lieux locataire : 180 EUR


Bilan énergétique


Performance du logementGaz à effet de serre

Échelle de performance énergétique s'étalant du niveau A, correspondant à un logement extrêmement performant, au niveau G, correspondant à un logement extrêmement peu performant. Les niveaux F et G sont qualifiés de passoires énergétiques. La consommation (énergie primaire) est de 94 kWh/m².an et est associée à une émission de 18 kg de dioxyde de carbone/m².an (voir détail de l'émission de gaz à effet de serre ci-après), cela correspond à une performance énergétique de niveau C.

Échelle d'émissions des gaz à effet de serre s'étalant du niveau A, correspondant à peu d'émission de CO2, au niveau G, correspondant à des émissions très importantes. Avec une émission de 18 kg de dioxyde de carbone/m²/an, l'émission de gaz à effet de serre est de niveau C.


Date du dernier diagnostic : 20/12/2025
Montant estimé des dépenses annuelles d'énergie pour un usage standard

Les coûts sont estimés en fonction des caractéristiques du logement et pour une utilisation sur 5 usages (chauffage, eau chaude sanitaire, climatisation, éclairage, auxiliaires).


entre 630 EUR et 890 EUR par an


Prix moyens des énergies indexés sur l'année 2021 (abonnement compris)

Etat des risques
Consultez l'état des risques réglementés pour l'information des acquéreurs et des locataires ici
Les informations sur les risques auxquels ce bien est exposé sont disponibles sur le site Géorisques : www.georisques.gouv.fr
Localisation du bien
Vos temps de trajet moyen
  • Ajouter un point d'intérêt personnalisé
 Nature du lieuAdresseDurée du trajet en voitureDurée du trajet en transport en communDurée du trajet en véloDurée du trajet à piedActions    Actions

Ce bien a attiré votre attention ?

Ajoutez vos emplacements préférés pour calculer le temps de trajet depuis ce bien.

Connexion

Pas encore de compte ? Créez un espace utilisateur AFEDIM.

OK X
Nous contacter

Pour toute demande de renseignements complémentaires, demander à visiter le bien ou tout simplement déposer votre dossier de location...
N'hésitez pas à nous contacter !


Autres annonces à proximité