Louer Résultats de votre recherche Détail de l'annonce

Location Appartement 3 pièces de 59m² à 750 EUR/mois à BESANCON

LES ROCHES VALLIERES - Appartement - 3 pièces
A propos de ce bien :

750EUR / mois

Charges comprises

  • Appartement
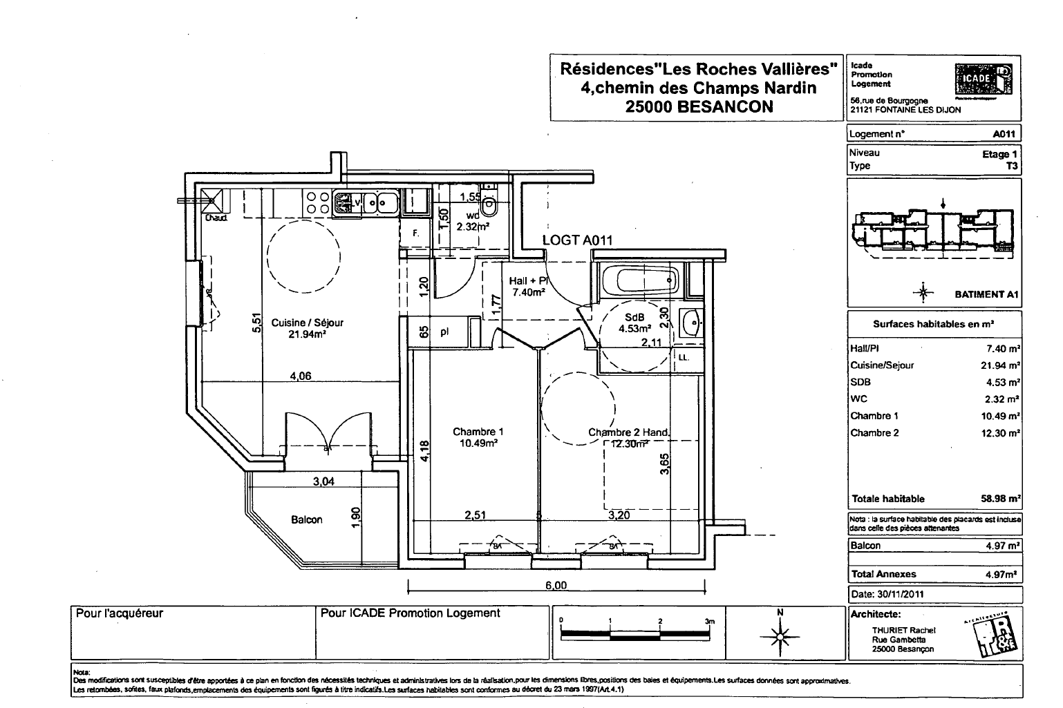
  • 4 CHEMIN DES CHAMPS NARDIN A011
    25000 BESANCON
  • 3 pièces
  • 58,98m²
  • 1er étage
  • Disponibilité immédiate
  • DPE : C

Ce bien vous est proposé par notre filiale :

AFEDIM Gestion
Mes notes

Ce bien a attiré votre attention ?

Retrouvez vos notes personnelles en vous connectant à votre espace.

Connexion

Pas encore de compte ? Créez un espace utilisateur AFEDIM.

Description du logement

A Besançon, au quartier VELOTTE, dans résidence Les Roches Vallières, un appartement T3 n° A011 de 58.98 m², avec balcon de 4.97 m², au 1er étage du Bâtiment A avec ascenseur, composé un hall avec placard, un séjour avec cuisine (hotte et plaque de cuisson), deux chambres, une salle de bains et un WC séparé. Un garage au sous-sol n° G15 et une cave n° C11. Eau chaude et chauffage (individuel). Entretien parties communes, entretien ascenseur et espaces verts communs, compris dans les provisions sur charges mensuelles et donnant lieu à une régularisation annuelle. Les honoraires de location TTC (à la charge du locataire) incluent le montant de rédaction des états des lieux facturé pour 176euros TTC, après réalisation lors de l'entrée dans les lieux. Disponible le 02/01/2026. Pour plus de détails sur ce logement, vous pouvez consulter la fiche descriptive de ce bien, sur votre site internet AFEDIM.


Voir le plan du lot


Numéro commercial : A011

Référence du bien : 0044840


Caractéristique(s) de l'immeuble

  • Ascenseur


Caractéristique(s) du logement

  • Surface habitable : 58,98 m²

  • Balcon (4,97 m²)

  • 1er étage

  • Eau chaude individuelle - Chaudière à gaz

  • Chauffage individuel - Chaudière à gaz

  • Cuisine : Aménagée et équipée

  • Orientation : Sud

  • Placard(s)


Annexes

  • Cave

  • Garage


Conditions financières

  • Loyer hors charges : 675 EUR

  • Montant du dépôt de garantie : 675 EUR

  • Provision sur charges : 75 EUR

  • Honoraires TTC à la charge du locataire : 475 EUR

  • Honoraires TTC états des lieux locataire : 178 EUR


Bilan énergétique


Performance du logementGaz à effet de serre

Échelle de performance énergétique s'étalant du niveau A, correspondant à un logement extrêmement performant, au niveau G, correspondant à un logement extrêmement peu performant. Les niveaux F et G sont qualifiés de passoires énergétiques. La consommation (énergie primaire) est de 89 kWh/m².an et est associée à une émission de 17 kg de dioxyde de carbone/m².an (voir détail de l'émission de gaz à effet de serre ci-après), cela correspond à une performance énergétique de niveau C.

Échelle d'émissions des gaz à effet de serre s'étalant du niveau A, correspondant à peu d'émission de CO2, au niveau G, correspondant à des émissions très importantes. Avec une émission de 17 kg de dioxyde de carbone/m²/an, l'émission de gaz à effet de serre est de niveau C.


Date du dernier diagnostic : 12/11/2025
Montant estimé des dépenses annuelles d'énergie pour un usage standard

Les coûts sont estimés en fonction des caractéristiques du logement et pour une utilisation sur 5 usages (chauffage, eau chaude sanitaire, climatisation, éclairage, auxiliaires).


entre 580 EUR et 840 EUR par an


Prix moyens des énergies indexés sur l'année 2021 (abonnement compris)

Etat des risques
Consultez l'état des risques réglementés pour l'information des acquéreurs et des locataires ici
Les informations sur les risques auxquels ce bien est exposé sont disponibles sur le site Géorisques : www.georisques.gouv.fr
Localisation du bien
Vos temps de trajet moyen
  • Ajouter un point d'intérêt personnalisé
 Nature du lieuAdresseDurée du trajet en voitureDurée du trajet en transport en communDurée du trajet en véloDurée du trajet à piedActions    Actions

Ce bien a attiré votre attention ?

Ajoutez vos emplacements préférés pour calculer le temps de trajet depuis ce bien.

Connexion

Pas encore de compte ? Créez un espace utilisateur AFEDIM.

OK X
Nous contacter

Pour toute demande de renseignements complémentaires, demander à visiter le bien ou tout simplement déposer votre dossier de location...
N'hésitez pas à nous contacter !