Louer Résultats de votre recherche Détail de l'annonce

Location Appartement 3 pièces de 66m² à 676 EUR/mois à AVRILLE

INITIAL - Appartement - 3 pièces
A propos de ce bien :

676,37EUR / mois

Charges comprises

  • Appartement
  • 1 B CHEMIN DU CHAMP DES
    49240 AVRILLE
  • 3 pièces
  • 66,25m²
  • 3ème étage
  • Disponibilité immédiate
  • DPE : C

Location soumise au respect d'un plafond de ressources/revenus

Calculer le plafond de ressources

Ce bien vous est proposé par notre filiale :

AFEDIM Gestion
Mes notes

Ce bien a attiré votre attention ?

Retrouvez vos notes personnelles en vous connectant à votre espace.

Connexion

Pas encore de compte ? Créez un espace utilisateur AFEDIM.

Description du logement

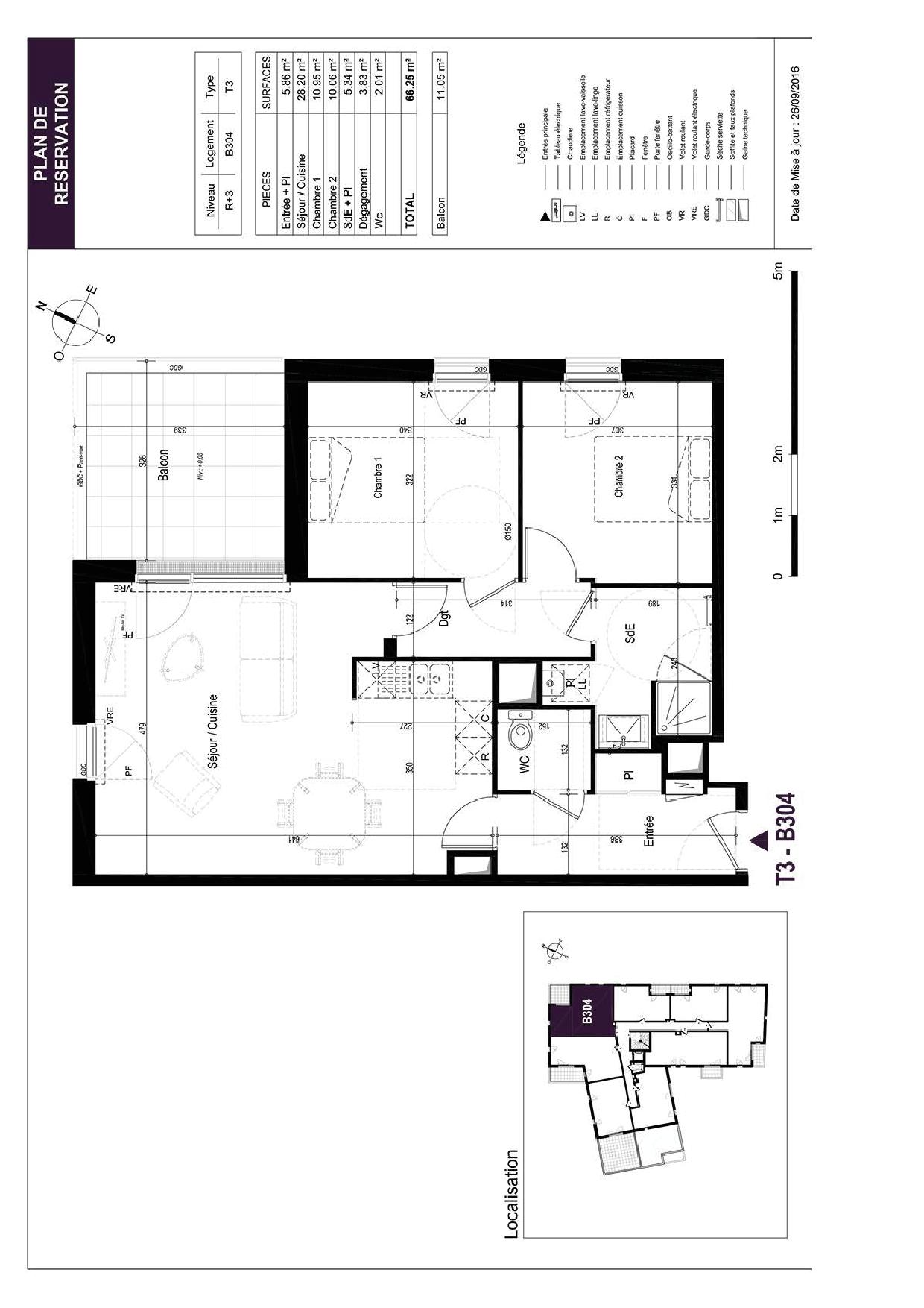
AVRILLE. Un emplacement recherché, entre vie urbaine et calme environnant. Tout proche d'une crèche, d'établissements scolaires mais aussi des équipements de loisirs, d'un centre culturel et de la piscine Aqua Vita. Dans la résidence neuve INITIAL, vous est proposé un appartement (n°B304) de type 3 de 66m² sis au 3ème étage avec ascenseur. Entrée desservant une pièce de vie de 24m² avec espace cuisine donnant sur un balcon, dégagement desservant deux chambres, salle d'eau comprenant douche et meuble vasque, WC séparé. Place de parking en extérieur n°28. Chauffage et eau chaude par chaudière idividuelle gaz à condensantion. Eau froide individuelle. Entretien parties communes, entretien ascenseur et espaces verts communs, compris dans les provisions sur charges mensuelles et donnant lieu à une régularisation annuelle. Logement disponible.


Voir le plan du lot


Numéro commercial : B304

Référence du bien : 0035903


Caractéristique(s) de l'immeuble

  • Résidence sécurisée

  • Antenne TV

  • Ascenseur

  • Espaces verts


Caractéristique(s) du logement

  • Surface habitable : 66,25 m²

  • 3ème étage

  • Chauffage individuel - Chaudière à gaz

  • Cuisine : Non aménagée et non équipée


Conditions financières

  • Loyer hors charges : 618,37 EUR

  • Montant du dépôt de garantie : 618,37 EUR

  • Provision sur charges : 58 EUR

  • Honoraires TTC à la charge du locataire : 534 EUR

  • Honoraires TTC états des lieux locataire : 200 EUR


Bilan énergétique


Performance du logementGaz à effet de serre

Échelle de performance énergétique s'étalant du niveau A, correspondant à un logement extrêmement performant, au niveau G, correspondant à un logement extrêmement peu performant. Les niveaux F et G sont qualifiés de passoires énergétiques. La consommation (énergie primaire) est de 65 kWh/m².an et est associée à une émission de 12 kg de dioxyde de carbone/m².an (voir détail de l'émission de gaz à effet de serre ci-après), cela correspond à une performance énergétique de niveau C.

Échelle d'émissions des gaz à effet de serre s'étalant du niveau A, correspondant à peu d'émission de CO2, au niveau G, correspondant à des émissions très importantes. Avec une émission de 12 kg de dioxyde de carbone/m²/an, l'émission de gaz à effet de serre est de niveau C.


Date du dernier diagnostic : 15/01/2026
Montant estimé des dépenses annuelles d'énergie pour un usage standard

Les coûts sont estimés en fonction des caractéristiques du logement et pour une utilisation sur 5 usages (chauffage, eau chaude sanitaire, climatisation, éclairage, auxiliaires).


entre 480 EUR et 700 EUR par an


Prix moyens des énergies indexés sur les années 2021, 2022 et 2023 (abonnements compris)

Etat des risques
Consultez l'état des risques réglementés pour l'information des acquéreurs et des locataires ici
Les informations sur les risques auxquels ce bien est exposé sont disponibles sur le site Géorisques : www.georisques.gouv.fr
Localisation du bien
Vos temps de trajet moyen
  • Ajouter un point d'intérêt personnalisé
 Nature du lieuAdresseDurée du trajet en voitureDurée du trajet en transport en communDurée du trajet en véloDurée du trajet à piedActions    Actions

Ce bien a attiré votre attention ?

Ajoutez vos emplacements préférés pour calculer le temps de trajet depuis ce bien.

Connexion

Pas encore de compte ? Créez un espace utilisateur AFEDIM.

OK X
Nous contacter

Pour toute demande de renseignements complémentaires, demander à visiter le bien ou tout simplement déposer votre dossier de location...
N'hésitez pas à nous contacter !


Autres annonces à proximité