Louer Détail de l'annonce

Location Appartement 2 pièces de 41m² à 574 EUR/mois à TOURS

ROOSEVELT - Appartement - 2 pièces
A propos de ce bien :

573,68EUR / mois

Charges comprises

  • Appartement
  • 31 RUE FRANKLIN ROOSEVELT
    37000 TOURS
  • 2 pièces
  • 41,2m²
  • 2ème étage
  • Disponibilité immédiate
  • DPE : C

Location soumise au respect d'un plafond de ressources/revenus

Calculer le plafond de ressources

Ce bien vous est proposé par notre filiale :

AFEDIM Gestion
Mes notes

Ce bien a attiré votre attention ?

Retrouvez vos notes personnelles en vous connectant à votre espace.

Connexion

Pas encore de compte ? Créez un espace utilisateur AFEDIM.

Description du logement

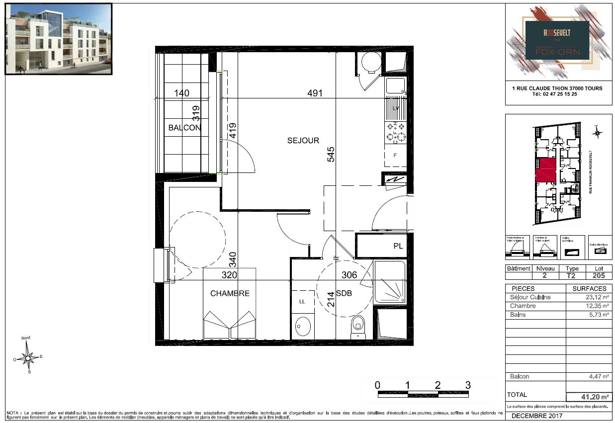
Nous vous proposons un appartement de type T2 n°205 de 41.20m² situé au 2ème étage, composé d'une entrée avec placard, d'un séjour avec un espace cuisine aménagée et équipée (meubles haut et bas, four, plaques de cuisson et hotte) de 23m², une chambre de 12m², une salle de bains avec WC et un balcon de 4.47m². Cet appartement dispose également d'un parking extérieur n°45. Eau chaude et chauffage individuel électrique. Entretien parties communes, entretien ascenseur et espaces verts communs, compris dans les provisions sur charges mensuelles et donnant lieu à une régularisation annuelle. Les honoraires de location TTC (à la charge du locataire) incluent le montant de rédaction des états des lieux facturé pour 124 euros TTC, après réalisation lors de l'entrée dans les lieux. Disponible le 21/02/2026. Pour plus de détails sur ce logement, vous pouvez consulter la fiche descriptive de ce bien, sur votre site internet AFEDIM


Voir le plan du lot


Numéro commercial : 205

Référence du bien : 0038809


Caractéristique(s) du logement

  • Surface habitable : 41,2 m²

  • Balcon (4,00 m²)

  • 2ème étage

  • Eau chaude individuelle - électrique

  • Chauffage individuel - Electrique


Annexes

  • Parking


Conditions financières

  • Loyer hors charges : 518,68 EUR

  • Montant du dépôt de garantie : 518,68 EUR

  • Provision sur charges : 55 EUR

  • Honoraires TTC à la charge du locataire : 332 EUR

  • Honoraires TTC états des lieux locataire : 124 EUR


Bilan énergétique


Performance du logementGaz à effet de serre

Échelle de performance énergétique s'étalant du niveau A, correspondant à un logement extrêmement performant, au niveau G, correspondant à un logement extrêmement peu performant. Les niveaux F et G sont qualifiés de passoires énergétiques. La consommation (énergie primaire) est de 116 kWh/m².an et est associée à une émission de 4 kg de dioxyde de carbone/m².an (voir détail de l'émission de gaz à effet de serre ci-après), cela correspond à une performance énergétique de niveau C.

Échelle d'émissions des gaz à effet de serre s'étalant du niveau A, correspondant à peu d'émission de CO2, au niveau G, correspondant à des émissions très importantes. Avec une émission de 4 kg de dioxyde de carbone/m²/an, l'émission de gaz à effet de serre est de niveau A.


Date du dernier diagnostic : 05/03/2026
Etat des risques
Consultez l'état des risques réglementés pour l'information des acquéreurs et des locataires ici
Les informations sur les risques auxquels ce bien est exposé sont disponibles sur le site Géorisques : www.georisques.gouv.fr
Localisation du bien
Vos temps de trajet moyen
  • Ajouter un point d'intérêt personnalisé
 Nature du lieuAdresseDurée du trajet en voitureDurée du trajet en transport en communDurée du trajet en véloDurée du trajet à piedActions    Actions

Ce bien a attiré votre attention ?

Ajoutez vos emplacements préférés pour calculer le temps de trajet depuis ce bien.

Connexion

Pas encore de compte ? Créez un espace utilisateur AFEDIM.

OK X
Nous contacter

Pour toute demande de renseignements complémentaires, demander à visiter le bien ou tout simplement déposer votre dossier de location...
N'hésitez pas à nous contacter !


Autres annonces à proximité