Louer Détail de l'annonce

Location Appartement 2 pièces de 41m² à 582 EUR/mois à STRASBOURG

CARRE EUROPA - VILLA EUROPA - Appartement - 2 pièces
A propos de ce bien :

581,85EUR / mois

Charges comprises

  • Appartement
  • 4 RUE DAHLENHEIM
    67200 STRASBOURG
  • 2 pièces
  • 40,96m²
  • 3ème étage
  • Disponibilité immédiate
  • DPE : C

Location soumise au respect d'un plafond de ressources/revenus

Calculer le plafond de ressources

Ce bien vous est proposé par notre filiale :

AFEDIM Gestion
Mes notes

Ce bien a attiré votre attention ?

Retrouvez vos notes personnelles en vous connectant à votre espace.

Connexion

Pas encore de compte ? Créez un espace utilisateur AFEDIM.

Description du logement

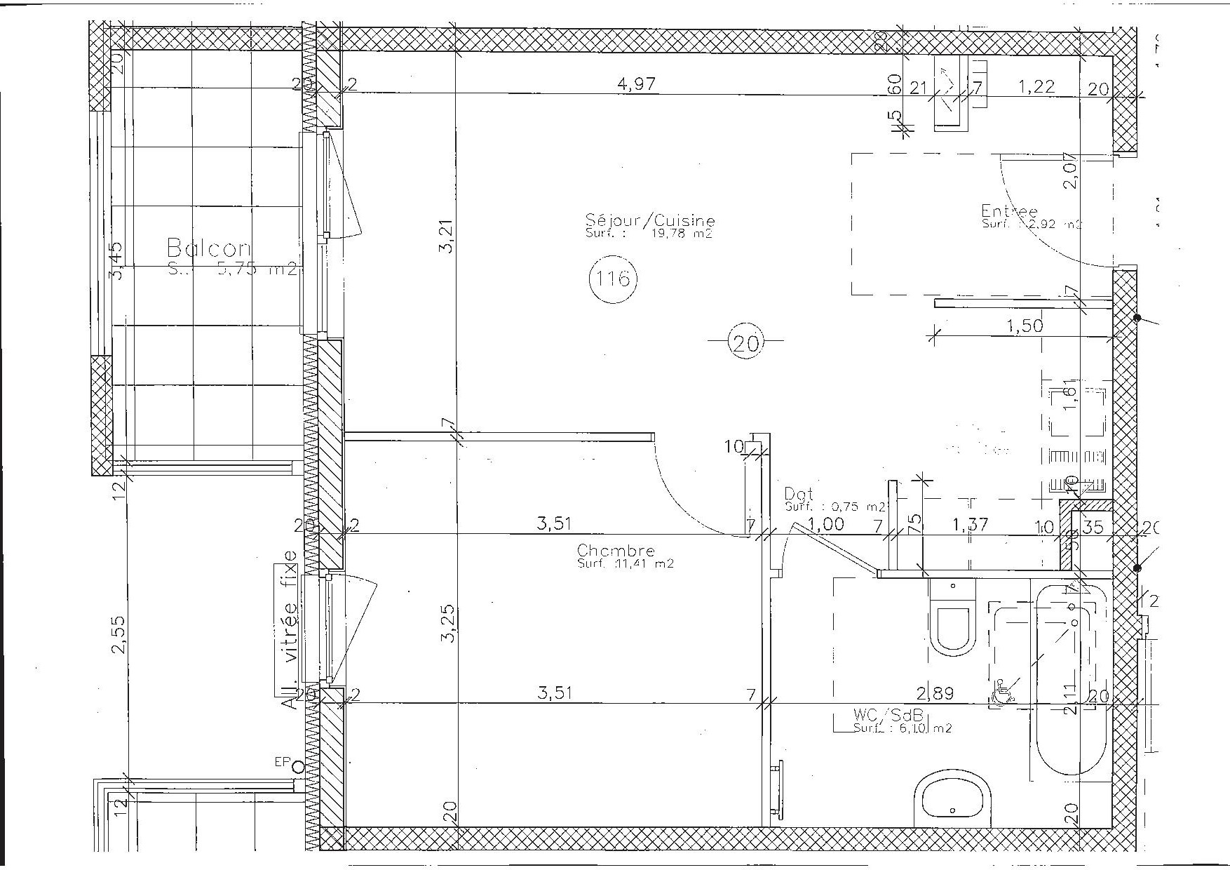
A Strasbourg, à proximité de toutes les commodités, dans la résidence CARRE EUROPA - VILLA EUROPA, nous vous proposons un appartement T2 n°116 (lot 116) de 40.96m² au 3ème étage du bâtiment B. Il comprend une entrée, un séjour cuisine donnant sur un balcon de 5.75m², une chambre, une salle de bain avec WC. Chauffage, eau chaude, eau froide, entretien des parties communes, entretien ascenseur et espaces verts communs, compris dans les provisions sur charges mensuelles et donnant lieu à une régularisation annuelle. Duflot-Pinel(B1). Honoraires de rédaction de l'état des lieux d'entrée facturés pour 124,00 euros TTC, après réalisation lors de l'entrée dans les lieux. Pour plus de détails sur ce logement, vous pouvez consulter la fiche descriptive de ce bien, sur notre site internet AFEDIM Disponibilité immédiate.


Voir le plan du lot


Numéro commercial : 116

Référence du bien : 0026487


Caractéristique(s) de l'immeuble

  • Résidence sécurisée

  • Antenne TV

  • Câble

  • Ascenseur


Caractéristique(s) du logement

  • Surface habitable : 40,96 m²

  • 3ème étage

  • Eau chaude collective - Chaudière à gaz

  • Chauffage collectif - Chaudière à gaz

  • Cuisine : Non aménagée et non équipée

  • Placard(s)


Conditions financières

  • Loyer hors charges : 486,85 EUR

  • Montant du dépôt de garantie : 486,85 EUR

  • Provision sur charges : 95 EUR

  • Honoraires TTC à la charge du locataire : 413 EUR

  • Honoraires TTC états des lieux locataire : 124 EUR


Bilan énergétique


Performance du logementGaz à effet de serre

Échelle de performance énergétique s'étalant du niveau A, correspondant à un logement extrêmement performant, au niveau G, correspondant à un logement extrêmement peu performant. Les niveaux F et G sont qualifiés de passoires énergétiques. La consommation (énergie primaire) est de 117 kWh/m².an et est associée à une émission de 22 kg de dioxyde de carbone/m².an (voir détail de l'émission de gaz à effet de serre ci-après), cela correspond à une performance énergétique de niveau C.

Échelle d'émissions des gaz à effet de serre s'étalant du niveau A, correspondant à peu d'émission de CO2, au niveau G, correspondant à des émissions très importantes. Avec une émission de 22 kg de dioxyde de carbone/m²/an, l'émission de gaz à effet de serre est de niveau C.


Date du dernier diagnostic : 07/01/2026
Montant estimé des dépenses annuelles d'énergie pour un usage standard

Les coûts sont estimés en fonction des caractéristiques du logement et pour une utilisation sur 5 usages (chauffage, eau chaude sanitaire, climatisation, éclairage, auxiliaires).


entre 450 EUR et 608 EUR par an


Prix moyens des énergies indexés sur les années 2021, 2022 et 2023 (abonnements compris)

Etat des risques
Consultez l'état des risques réglementés pour l'information des acquéreurs et des locataires ici
Les informations sur les risques auxquels ce bien est exposé sont disponibles sur le site Géorisques : www.georisques.gouv.fr
Localisation du bien
Vos temps de trajet moyen
  • Ajouter un point d'intérêt personnalisé
 Nature du lieuAdresseDurée du trajet en voitureDurée du trajet en transport en communDurée du trajet en véloDurée du trajet à piedActions    Actions

Ce bien a attiré votre attention ?

Ajoutez vos emplacements préférés pour calculer le temps de trajet depuis ce bien.

Connexion

Pas encore de compte ? Créez un espace utilisateur AFEDIM.

OK X
Nous contacter

Pour toute demande de renseignements complémentaires, demander à visiter le bien ou tout simplement déposer votre dossier de location...
N'hésitez pas à nous contacter !