Louer Détail de l'annonce

Location Appartement 3 pièces de 62m² à 744 EUR/mois à ST BRIEUC

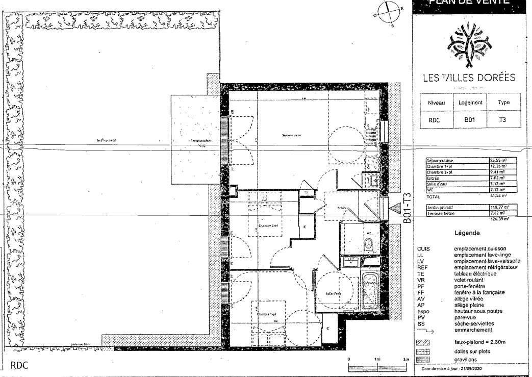
LES VILLES DOREES - Appartement - 3 pièces
A propos de ce bien :

744,38EUR / mois

Charges comprises

  • Appartement
  • 48 RUE DE LAFAYETTE BAT B - RDC - APPT B01
    22000 ST BRIEUC
  • 3 pièces
  • 61,58m²
  • Rez-de-chaussée
  • Disponible dès le 22/04/2026
  • DPE : C

Ce bien vous est proposé par notre filiale :

AFEDIM Gestion
Mes notes

Ce bien a attiré votre attention ?

Retrouvez vos notes personnelles en vous connectant à votre espace.

Connexion

Pas encore de compte ? Créez un espace utilisateur AFEDIM.

Description du logement

A ST BRIEUC, dans la résidence neuve LES VILLES DOREES, nous vous proposons un logement T3 N° B01 de 61.58 m² sis au RDC. Il se compose, d'une entrée, une pièce de vie de 25.55 m² comprenant une cuisine ouverte sur un séjour et donnant sur une terrasse de 7.62 m² exposée ouest, deux chambres avec placards, une salle d'eau de bains et WC séparés. En extérieur, un parking N°3. Un jardin privatif de 118.77 m².Entretien parties communes, entretien ascenseur et espaces verts communs, compris dans les provisions sur charges mensuelles et donnant lieu à une régularisation annuelle. Les honoraires de location TTC (à la charge du locataire) incluent le montant de rédaction des états des lieux facturé pour 186 euros TTC, après réalisation lors de l'entrée dans les lieux. Disponible le 21/04/2026. Pour plus de détails sur ce logement, vous pouvez consulter la fiche descriptive de ce bien, sur votre site internet AFEDIM


Voir le plan du lot


Numéro commercial : B01

Référence du bien : 0059434


Caractéristique(s) de l'immeuble

  • Antenne TV

  • Fibre optique

  • Espaces verts

  • Local à vélo


Caractéristique(s) du logement

  • Surface habitable : 61,58 m²

  • Terrasse (7,62 m²)

  • Jardin (118,77 m²)

  • Rez-de-chaussée

  • Eau chaude individuelle - Chaudière à gaz

  • Chauffage individuel - Chaudière à gaz

  • Orientation : Ouest

  • Placard(s)


Annexes

  • Parking


Conditions financières

  • Loyer hors charges : 694,38 EUR

  • Montant du dépôt de garantie : 694,38 EUR

  • Provision sur charges : 50 EUR

  • Honoraires TTC à la charge du locataire : 496 EUR

  • Honoraires TTC états des lieux locataire : 186 EUR


Bilan énergétique


Performance du logementGaz à effet de serre

Échelle de performance énergétique s'étalant du niveau A, correspondant à un logement extrêmement performant, au niveau G, correspondant à un logement extrêmement peu performant. Les niveaux F et G sont qualifiés de passoires énergétiques. La consommation (énergie primaire) est de 68 kWh/m².an et est associée à une émission de 13 kg de dioxyde de carbone/m².an (voir détail de l'émission de gaz à effet de serre ci-après), cela correspond à une performance énergétique de niveau C.

Échelle d'émissions des gaz à effet de serre s'étalant du niveau A, correspondant à peu d'émission de CO2, au niveau G, correspondant à des émissions très importantes. Avec une émission de 13 kg de dioxyde de carbone/m²/an, l'émission de gaz à effet de serre est de niveau C.


Date du dernier diagnostic : 08/11/2023
Montant estimé des dépenses annuelles d'énergie pour un usage standard

Les coûts sont estimés en fonction des caractéristiques du logement et pour une utilisation sur 5 usages (chauffage, eau chaude sanitaire, climatisation, éclairage, auxiliaires).


entre 408 EUR et 552 EUR par an


Prix moyens des énergies indexés sur l'année 2021 (abonnement compris)

Etat des risques
Consultez l'état des risques réglementés pour l'information des acquéreurs et des locataires ici
Les informations sur les risques auxquels ce bien est exposé sont disponibles sur le site Géorisques : www.georisques.gouv.fr
Localisation du bien
Vos temps de trajet moyen
  • Ajouter un point d'intérêt personnalisé
 Nature du lieuAdresseDurée du trajet en voitureDurée du trajet en transport en communDurée du trajet en véloDurée du trajet à piedActions    Actions

Ce bien a attiré votre attention ?

Ajoutez vos emplacements préférés pour calculer le temps de trajet depuis ce bien.

Connexion

Pas encore de compte ? Créez un espace utilisateur AFEDIM.

OK X
Nous contacter

Pour toute demande de renseignements complémentaires, demander à visiter le bien ou tout simplement déposer votre dossier de location...
N'hésitez pas à nous contacter !