Louer Détail de l'annonce

Location Appartement 2 pièces de 39m² à 676 EUR/mois à OBERNAI

DEMEURES D'EMMA - Appartement - 2 pièces
A propos de ce bien :

676EUR / mois

Charges comprises

  • Appartement
  • 4 RUE DES CHENES
    67210 OBERNAI
  • 2 pièces
  • 39,3m²
  • 3ème étage
  • Disponible dès le 10/03/2026
  • DPE : C

Location soumise au respect d'un plafond de ressources/revenus

Calculer le plafond de ressources

Ce bien vous est proposé par notre filiale :

AFEDIM Gestion
Mes notes

Ce bien a attiré votre attention ?

Retrouvez vos notes personnelles en vous connectant à votre espace.

Connexion

Pas encore de compte ? Créez un espace utilisateur AFEDIM.

Description du logement

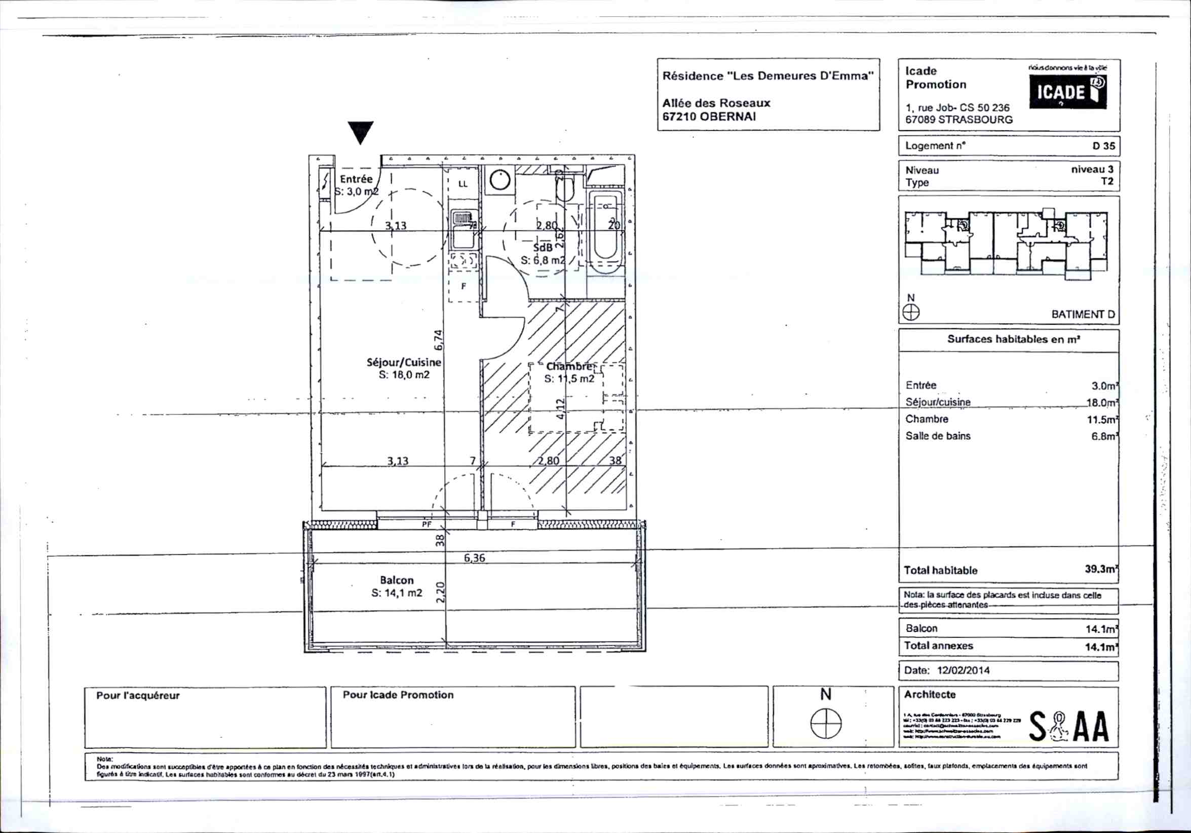
A Obernai, dans la résidence " DEMEURES D'EMMA ", nous vous proposons un appartement de type T2 n° D35 de 39.30 m². Situé au 3ème étage avec ascenseur, il comprend : un séjour avec cuisine donnant sur une terrasse exposée sud de 14,1 m², 1 chambre de 11,5 m2 et une salle de bain avec WC. Au rez-de-chaussée un garage n°G15. Chauffage, eau chaude, eau froide, entretien parties communes, entretien ascenseur et espaces verts communs, compris dans les provisions sur charges mensuelles et donnant lieu à une régularisation annuelle. Le montant des honoraires mentionné inclut le montant des honoraires de location (visite, constitution dossier, bail) facturé directement au locataire par le partenaire pour 317,00euros TTC et le montant des honoraires de rédaction des états des lieux facturé par AFEDIM Gestion pour 119,00 euros TTC, après réalisation, lors de l'entrée dans les lieux. Le règlement des honoraires état des lieux est à adresser avec le bail signé à AFEDIM Gestion. Pour plus de renseignements, veuillez consulter le site AFEDIM.


Voir le plan du lot


Numéro commercial : D35

Référence du bien : 0031103


Caractéristique(s) de l'immeuble

  • Antenne TV

  • Ascenseur


Caractéristique(s) du logement

  • Surface habitable : 39,3 m²

  • Balcon (14,00 m²)

  • 3ème étage

  • Eau chaude collective - Chaudière à gaz

  • Chauffage collectif - Chaudière à gaz

  • Cuisine : Aménagée et équipée

  • Orientation : Sud

  • Placard(s)


Annexes

  • Garage


Conditions financières

  • Loyer hors charges : 540 EUR

  • Montant du dépôt de garantie : 540 EUR

  • Provision sur charges : 136 EUR

  • Honoraires TTC à la charge du locataire : 317 EUR

  • Honoraires TTC états des lieux locataire : 119 EUR


Bilan énergétique


Performance du logementGaz à effet de serre

Échelle de performance énergétique s'étalant du niveau A, correspondant à un logement extrêmement performant, au niveau G, correspondant à un logement extrêmement peu performant. Les niveaux F et G sont qualifiés de passoires énergétiques. La consommation (énergie primaire) est de 115 kWh/m².an et est associée à une émission de 22 kg de dioxyde de carbone/m².an (voir détail de l'émission de gaz à effet de serre ci-après), cela correspond à une performance énergétique de niveau C.

Échelle d'émissions des gaz à effet de serre s'étalant du niveau A, correspondant à peu d'émission de CO2, au niveau G, correspondant à des émissions très importantes. Avec une émission de 22 kg de dioxyde de carbone/m²/an, l'émission de gaz à effet de serre est de niveau C.


Date du dernier diagnostic : 06/11/2023
Montant estimé des dépenses annuelles d'énergie pour un usage standard

Les coûts sont estimés en fonction des caractéristiques du logement et pour une utilisation sur 5 usages (chauffage, eau chaude sanitaire, climatisation, éclairage, auxiliaires).


entre 282 EUR et 382 EUR par an


Prix moyens des énergies indexés sur l'année 2021 (abonnement compris)

Etat des risques
Consultez l'état des risques réglementés pour l'information des acquéreurs et des locataires ici
Les informations sur les risques auxquels ce bien est exposé sont disponibles sur le site Géorisques : www.georisques.gouv.fr
Localisation du bien
Vos temps de trajet moyen
  • Ajouter un point d'intérêt personnalisé
 Nature du lieuAdresseDurée du trajet en voitureDurée du trajet en transport en communDurée du trajet en véloDurée du trajet à piedActions    Actions

Ce bien a attiré votre attention ?

Ajoutez vos emplacements préférés pour calculer le temps de trajet depuis ce bien.

Connexion

Pas encore de compte ? Créez un espace utilisateur AFEDIM.

OK X
Nous contacter

Pour toute demande de renseignements complémentaires, demander à visiter le bien ou tout simplement déposer votre dossier de location...
N'hésitez pas à nous contacter !