Louer Détail de l'annonce

Location Appartement 2 pièces de 40m² à 711 EUR/mois à NICE

OPUS 62 - Appartement - 2 pièces
A propos de ce bien :

711,27EUR / mois

Charges comprises

  • Appartement
  • 62 AV DENIS SEMERIA
    06300 NICE
  • 2 pièces
  • 39,58m²
  • 3ème étage
  • Disponible dès le 20/03/2026
  • DPE : A

Location soumise au respect d'un plafond de ressources/revenus

Calculer le plafond de ressources

Ce bien vous est proposé par notre filiale :

AFEDIM Gestion
Mes notes

Ce bien a attiré votre attention ?

Retrouvez vos notes personnelles en vous connectant à votre espace.

Connexion

Pas encore de compte ? Créez un espace utilisateur AFEDIM.

Description du logement

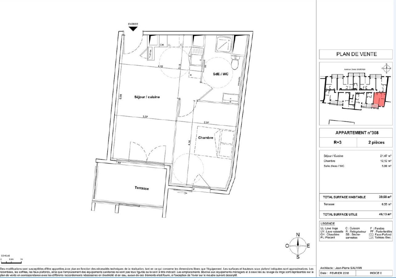
NICE. Dans la résidence OPUS 62, située à NICE, nous vous proposons un T2 n°LO308 (lot 65) au 3ème étage, de 39.58m² se composant, d'un séjour avec cuisine de 21.47 m² donnant sur une terrasse de 6.55m², d'une chambre de 12.12m² d'une salle d'eau avec WC. Eau chaude et chauffage par chaudière individuelle gaz. Eau froide, entretien parties communes, entretien ascenseur et espaces verts communs, compris dans les provisions sur charges mensuelles et donnant lieu à une régularisation annuelle. Le montant des honoraires mentionné inclut le montant des honoraires de location (visite, constitution dossier, bail) facturé directement au locataire par le partenaire pour 399 euros TTC et le montant des honoraires de rédaction des état des lieux facturé par AFEDIM Gestion pour 119 euros TTC, après réalisation, lors de l'entrée dans les lieux. Plus d'informations sur AFEDIM LOCATION.


Voir le plan du lot


Numéro commercial : LO308

Référence du bien : 0037615


Caractéristique(s) du logement

  • Surface habitable : 39,58 m²

  • 3ème étage

  • Eau chaude individuelle - Chaudière à gaz

  • Chauffage individuel - Chaudière à gaz

  • Cuisine : Aménagée et équipée

  • Orientation : Sud

  • Placard(s)


Conditions financières

  • Loyer hors charges : 665,27 EUR

  • Montant du dépôt de garantie : 665,27 EUR

  • Provision sur charges : 46 EUR

  • Honoraires TTC à la charge du locataire : 399 EUR

  • Honoraires TTC états des lieux locataire : 119 EUR


Bilan énergétique


Classe énergieIndice d'émission de gaz à effet de serre

Classe énergie

Logement économe
0 à 50
39 kWh/m².an
51 à 90
91 à 150
151 à 230
231 à 330
331 à 450
451 et +
Logement énergivore

Indice d'émission de gaz à effet de serre (GES)

Faible émission de GES
0 à 5
6 à 10
9 kg/m².an
11 à 20
21 à 35
36 à 55
56 à 80
81 et +
Forte émission de GES

Date du dernier diagnostic (DPE Ancienne Version): 13/01/2020
Montant estimé des dépenses annuelles d'énergie pour un usage standard

219 EUR par an
Prix moyens des énergies indexés sur l'année 2015 (abonnement compris)

Etat des risques
Les informations sur les risques auxquels ce bien est exposé sont disponibles sur le site Géorisques : www.georisques.gouv.fr
Localisation du bien
Vos temps de trajet moyen
  • Ajouter un point d'intérêt personnalisé
 Nature du lieuAdresseDurée du trajet en voitureDurée du trajet en transport en communDurée du trajet en véloDurée du trajet à piedActions    Actions

Ce bien a attiré votre attention ?

Ajoutez vos emplacements préférés pour calculer le temps de trajet depuis ce bien.

Connexion

Pas encore de compte ? Créez un espace utilisateur AFEDIM.

OK X
Nous contacter

Pour toute demande de renseignements complémentaires, demander à visiter le bien ou tout simplement déposer votre dossier de location...
N'hésitez pas à nous contacter !