Louer Détail de l'annonce

Location Appartement 1 pièce de 35m² à 621 EUR/mois à LOOS

ILOT PASTEUR - Appartement - 1 pièce
A propos de ce bien :

621EUR / mois

Charges comprises

  • Appartement
  • 138 CHEMIN DES POSTES
    59120 LOOS
  • 1 pièce
  • 35,36m²
  • 3ème étage
  • Disponibilité immédiate
  • DPE : D

Location soumise au respect d'un plafond de ressources/revenus

Calculer le plafond de ressources

Ce bien vous est proposé par notre filiale :

AFEDIM Gestion
Mes notes

Ce bien a attiré votre attention ?

Retrouvez vos notes personnelles en vous connectant à votre espace.

Connexion

Pas encore de compte ? Créez un espace utilisateur AFEDIM.

Description du logement

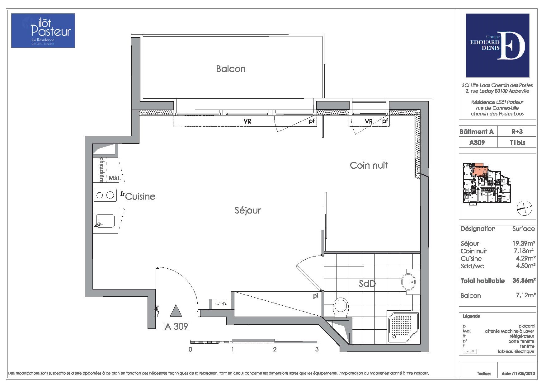
A LOOS, dans la résidence L'ILOT PASTEUR nous vous proposons un appartement T1 n°A309 de 35.36m² situé au 3ème étage avec balcon de 7.12m² du bâtiment A. L'appartement se compose d'un séjour de 19.39m², une cuisine de 4.29m² (plaque de cuisson, four, hotte, réfrigérateur), un coin nuit de 7.18m², une salle d'eau avec WC de 4.50m². Jouissance exclusive d'un parking au rez-de-chaussée du bâtiment B n°B15. Eau chaude et chauffage (individuel). Entretien parties communes, entretien ascenseur et espaces verts communs, compris dans les provisions sur charges mensuelles et donnant lieu à une régularisation annuelle. Les honoraires de location TTC (à la charge du locataire) incluent le montant de rédaction des états des lieux facturé pour 106euros TTC, après réalisation lors de l'entrée dans les lieux. Disponible le 17/11/2025.Pour plus de détails sur ce logement, vous pouvez consulter la fiche descriptive de ce bien, sur votre site internet AFEDIM.


Voir le plan du lot


Numéro commercial : A309

Référence du bien : 0045152


Caractéristique(s) de l'immeuble

  • Antenne TV

  • Ascenseur


Caractéristique(s) du logement

  • Surface habitable : 35,36 m²

  • Balcon (7,12 m²)

  • 3ème étage

  • Eau chaude individuelle - Chaudière à gaz

  • Chauffage individuel - Chaudière à gaz

  • Cuisine : Aménagée et équipée

  • Placard(s)


Annexes

  • Parking


Zone soumise à encadrement des loyers

  • Loyer de référence majoré : 643,55 EUR
    (Loyer de base à ne pas dépasser)

  • Loyer de base : 537,47 EUR
    (Loyer de référence)


Conditions financières

  • Loyer hors charges : 570 EUR

  • Montant du dépôt de garantie : 570 EUR

  • Provision sur charges : 51 EUR

  • Honoraires TTC à la charge du locataire : 353 EUR

  • Honoraires TTC états des lieux locataire : 106 EUR


Bilan énergétique


Performance du logementGaz à effet de serre

Échelle de performance énergétique s'étalant du niveau A, correspondant à un logement extrêmement performant, au niveau G, correspondant à un logement extrêmement peu performant. Les niveaux F et G sont qualifiés de passoires énergétiques. La consommation (énergie primaire) est de 163 kWh/m².an et est associée à une émission de 32 kg de dioxyde de carbone/m².an (voir détail de l'émission de gaz à effet de serre ci-après), cela correspond à une performance énergétique de niveau D.

Échelle d'émissions des gaz à effet de serre s'étalant du niveau A, correspondant à peu d'émission de CO2, au niveau G, correspondant à des émissions très importantes. Avec une émission de 32 kg de dioxyde de carbone/m²/an, l'émission de gaz à effet de serre est de niveau D.


Date du dernier diagnostic : 24/05/2023
Montant estimé des dépenses annuelles d'énergie pour un usage standard

Les coûts sont estimés en fonction des caractéristiques du logement et pour une utilisation sur 5 usages (chauffage, eau chaude sanitaire, climatisation, éclairage, auxiliaires).


entre 556 EUR et 752 EUR par an


Prix moyens des énergies indexés sur l'année 2021 (abonnement compris)

Etat des risques
Consultez l'état des risques réglementés pour l'information des acquéreurs et des locataires ici
Les informations sur les risques auxquels ce bien est exposé sont disponibles sur le site Géorisques : www.georisques.gouv.fr
Localisation du bien
Vos temps de trajet moyen
  • Ajouter un point d'intérêt personnalisé
 Nature du lieuAdresseDurée du trajet en voitureDurée du trajet en transport en communDurée du trajet en véloDurée du trajet à piedActions    Actions

Ce bien a attiré votre attention ?

Ajoutez vos emplacements préférés pour calculer le temps de trajet depuis ce bien.

Connexion

Pas encore de compte ? Créez un espace utilisateur AFEDIM.

OK X
Nous contacter

Pour toute demande de renseignements complémentaires, demander à visiter le bien ou tout simplement déposer votre dossier de location...
N'hésitez pas à nous contacter !


Autres annonces à proximité