Louer Détail de l'annonce

Location Appartement 2 pièces de 45m² à 841 EUR/mois à LILLE

ACTI CITY - Appartement - 2 pièces
A propos de ce bien :

841,19EUR / mois

Charges comprises

  • Appartement
  • 81 RUE GEORGES CLEMENCEAU
    59000 LILLE
  • 2 pièces
  • 45,06m²
  • 4ème étage
  • Disponible dès le 18/03/2026
  • DPE : B

Location soumise au respect d'un plafond de ressources/revenus

Calculer le plafond de ressources

Ce bien vous est proposé par notre filiale :

AFEDIM Gestion
Mes notes

Ce bien a attiré votre attention ?

Retrouvez vos notes personnelles en vous connectant à votre espace.

Connexion

Pas encore de compte ? Créez un espace utilisateur AFEDIM.

Description du logement

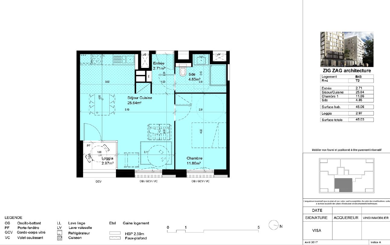
LILLE - Dans un quartier résidentiel proche de tout, située en retrait de la place du Lin, dans la résidence neuve ACTI CITY, nous vous proposons un appartement T2 B43 de 45.06m² situé au 4ème étage avec ascenseur. Cet appartement se compose d'une entrée, d'une pièce de vie avec un coin cuisine donnant sur une loggia de 2m², une chambre et une salle d'eau avec WC. Une place de parking intérieur PSA28. Chauffage et eau chaude au gaz urbain. Entretien parties communes, entretien ascenseur et espaces verts communs, compris dans les provisions sur charges mensuelles et donnant lieu à une régularisation annuelle. Les honoraires de location TTC (à la charge du locataire) incluent le montant de rédaction des états des lieux facturé pour 135 euros TTC, après réalisation lors de l'entrée dans les lieux. Disponible le 14/03/2026. Pour plus de détails sur ce logement, vous pouvez consulter la fiche descriptive de ce bien, sur votre site internet AFEDIM


Voir le plan du lot


Numéro commercial : B43

Référence du bien : 0038543


Caractéristique(s) du logement

  • Surface habitable : 45,06 m²

  • Loggia (2,97 m²)

  • 4ème étage

  • Eau chaude collective

  • Chauffage collectif - Urbain

  • Placard(s)


Annexes

  • Parking


Zone soumise à encadrement des loyers

  • Loyer de référence majoré : 720 EUR
    (Loyer de base à ne pas dépasser)

  • Loyer de base : 598,5 EUR
    (Loyer de référence)


Conditions financières

  • Loyer hors charges : 678,19 EUR

  • Montant du dépôt de garantie : 678,19 EUR

  • Provision sur charges : 163 EUR

  • Honoraires TTC à la charge du locataire : 454 EUR

  • Honoraires TTC états des lieux locataire : 136 EUR


Bilan énergétique


Performance du logementGaz à effet de serre

Échelle de performance énergétique s'étalant du niveau A, correspondant à un logement extrêmement performant, au niveau G, correspondant à un logement extrêmement peu performant. Les niveaux F et G sont qualifiés de passoires énergétiques. La consommation (énergie primaire) est de 106 kWh/m².an et est associée à une émission de 8 kg de dioxyde de carbone/m².an (voir détail de l'émission de gaz à effet de serre ci-après), cela correspond à une performance énergétique de niveau B.

Échelle d'émissions des gaz à effet de serre s'étalant du niveau A, correspondant à peu d'émission de CO2, au niveau G, correspondant à des émissions très importantes. Avec une émission de 8 kg de dioxyde de carbone/m²/an, l'émission de gaz à effet de serre est de niveau C.


Date du dernier diagnostic : 13/02/2025
Montant estimé des dépenses annuelles d'énergie pour un usage standard

Les coûts sont estimés en fonction des caractéristiques du logement et pour une utilisation sur 5 usages (chauffage, eau chaude sanitaire, climatisation, éclairage, auxiliaires).


entre 408 EUR et 552 EUR par an


Prix moyens des énergies indexés sur les années 2015 et 2025 (abonnements compris)

Etat des risques
Consultez l'état des risques réglementés pour l'information des acquéreurs et des locataires ici
Les informations sur les risques auxquels ce bien est exposé sont disponibles sur le site Géorisques : www.georisques.gouv.fr
Localisation du bien
Vos temps de trajet moyen
  • Ajouter un point d'intérêt personnalisé
 Nature du lieuAdresseDurée du trajet en voitureDurée du trajet en transport en communDurée du trajet en véloDurée du trajet à piedActions    Actions

Ce bien a attiré votre attention ?

Ajoutez vos emplacements préférés pour calculer le temps de trajet depuis ce bien.

Connexion

Pas encore de compte ? Créez un espace utilisateur AFEDIM.

OK X
Nous contacter

Pour toute demande de renseignements complémentaires, demander à visiter le bien ou tout simplement déposer votre dossier de location...
N'hésitez pas à nous contacter !


Autres annonces à proximité