Louer Détail de l'annonce

Location Appartement 2 pièces de 39m² à 576 EUR/mois à LAXOU

GALILEE - Appartement - 2 pièces
A propos de ce bien :

576,3EUR / mois

Charges comprises

  • Appartement
  • 12 RUE SYDNEY BECHET
    54520 LAXOU
  • 2 pièces
  • 39,12m²
  • 1er étage
  • Disponible dès le 01/03/2026
  • DPE : C

Location soumise au respect d'un plafond de ressources/revenus

Calculer le plafond de ressources

Ce bien vous est proposé par notre filiale :

AFEDIM Gestion
Mes notes

Ce bien a attiré votre attention ?

Retrouvez vos notes personnelles en vous connectant à votre espace.

Connexion

Pas encore de compte ? Créez un espace utilisateur AFEDIM.

Description du logement

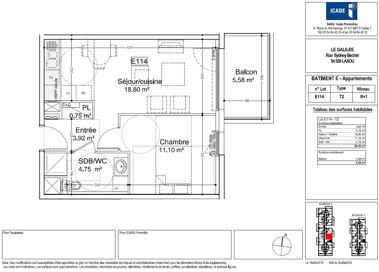
LAXOU. Implanté dans un écrin de verdure, ce programme est harmonieux et profite d'une bonne exposition. Proche de nombreuses infrastructures, cette construction de grande qualité s'inscrit au cour de la vie quotidienne tout en profitant d'un cadre calme. Dans la résidence LE GALILEE, vous est proposé un appartement (n°E114) de type 2 de 39m² sis au 1er étage avec ascenseur. Pièce de vie de 18m² avec espace cuisine donnant sur un balcon exposé EST. Entrée avec placard desservant une chambre et une salle d'eau avec douche, WC et meuble vasque. Stationnement sous-sol. Chauffage et eau chaude collectifs par chaudière gaz à condensation. Eau froide, entretien parties communes, entretien ascenseur et espaces verts communs, compris dans les provisions sur charges mensuelles et donnant lieu à une régularisation annuelle. Le montant des honoraires mentionné inclut le montant des honoraires de location (visite, constitution dossier, bail) facturé directement au locataire par le partenaire pour 315.00 euros TTC et le montant des honoraires de rédaction des état des lieux facturé par AFEDIM Gestion pour 118.00 euros TTC, après réalisation, lors de l'entrée dans les lieux. Plus d'infos sur AFEDIM LOCATION.


Voir le plan du lot


Numéro commercial : E114

Référence du bien : 0033016


Caractéristique(s) de l'immeuble

  • Résidence sécurisée

  • Antenne TV

  • Ascenseur

  • Espaces verts


Caractéristique(s) du logement

  • Surface habitable : 39,12 m²

  • 1er étage

  • Eau chaude collective - Chaudière à gaz

  • Chauffage collectif - Chaudière à gaz


Conditions financières

  • Loyer hors charges : 470,3 EUR

  • Montant du dépôt de garantie : 470,3 EUR

  • Provision sur charges : 106 EUR

  • Honoraires TTC à la charge du locataire : 315 EUR

  • Honoraires TTC états des lieux locataire : 118 EUR


Bilan énergétique


Performance du logementGaz à effet de serre

Échelle de performance énergétique s'étalant du niveau A, correspondant à un logement extrêmement performant, au niveau G, correspondant à un logement extrêmement peu performant. Les niveaux F et G sont qualifiés de passoires énergétiques. La consommation (énergie primaire) est de 84 kWh/m².an et est associée à une émission de 16 kg de dioxyde de carbone/m².an (voir détail de l'émission de gaz à effet de serre ci-après), cela correspond à une performance énergétique de niveau C.

Échelle d'émissions des gaz à effet de serre s'étalant du niveau A, correspondant à peu d'émission de CO2, au niveau G, correspondant à des émissions très importantes. Avec une émission de 16 kg de dioxyde de carbone/m²/an, l'émission de gaz à effet de serre est de niveau C.


Date du dernier diagnostic : 25/02/2026
Montant estimé des dépenses annuelles d'énergie pour un usage standard

Les coûts sont estimés en fonction des caractéristiques du logement et pour une utilisation sur 5 usages (chauffage, eau chaude sanitaire, climatisation, éclairage, auxiliaires).


entre 224 EUR et 224 EUR par an


Prix moyens des énergies indexés sur l'année 2021 (abonnement compris)

Etat des risques
Consultez l'état des risques réglementés pour l'information des acquéreurs et des locataires ici
Les informations sur les risques auxquels ce bien est exposé sont disponibles sur le site Géorisques : www.georisques.gouv.fr
Localisation du bien
Vos temps de trajet moyen
  • Ajouter un point d'intérêt personnalisé
 Nature du lieuAdresseDurée du trajet en voitureDurée du trajet en transport en communDurée du trajet en véloDurée du trajet à piedActions    Actions

Ce bien a attiré votre attention ?

Ajoutez vos emplacements préférés pour calculer le temps de trajet depuis ce bien.

Connexion

Pas encore de compte ? Créez un espace utilisateur AFEDIM.

OK X
Nous contacter

Pour toute demande de renseignements complémentaires, demander à visiter le bien ou tout simplement déposer votre dossier de location...
N'hésitez pas à nous contacter !


Autres annonces à proximité