Louer Détail de l'annonce

Location Appartement 2 pièces de 45m² à 576 EUR/mois à LA BAULE ESCOUBLAC

VILLA FLORIANE - Appartement - 2 pièces
A propos de ce bien :

576EUR / mois

Charges comprises

  • Appartement
  • 9 AVENUE FLORIAN
    44500 LA BAULE ESCOUBLAC
  • 2 pièces
  • 45,15m²
  • 2ème étage
  • Disponible dès le 29/03/2026
  • DPE : C

Location soumise au respect d'un plafond de ressources/revenus

Calculer le plafond de ressources

Ce bien vous est proposé par notre filiale :

AFEDIM Gestion
Mes notes

Ce bien a attiré votre attention ?

Retrouvez vos notes personnelles en vous connectant à votre espace.

Connexion

Pas encore de compte ? Créez un espace utilisateur AFEDIM.

Description du logement

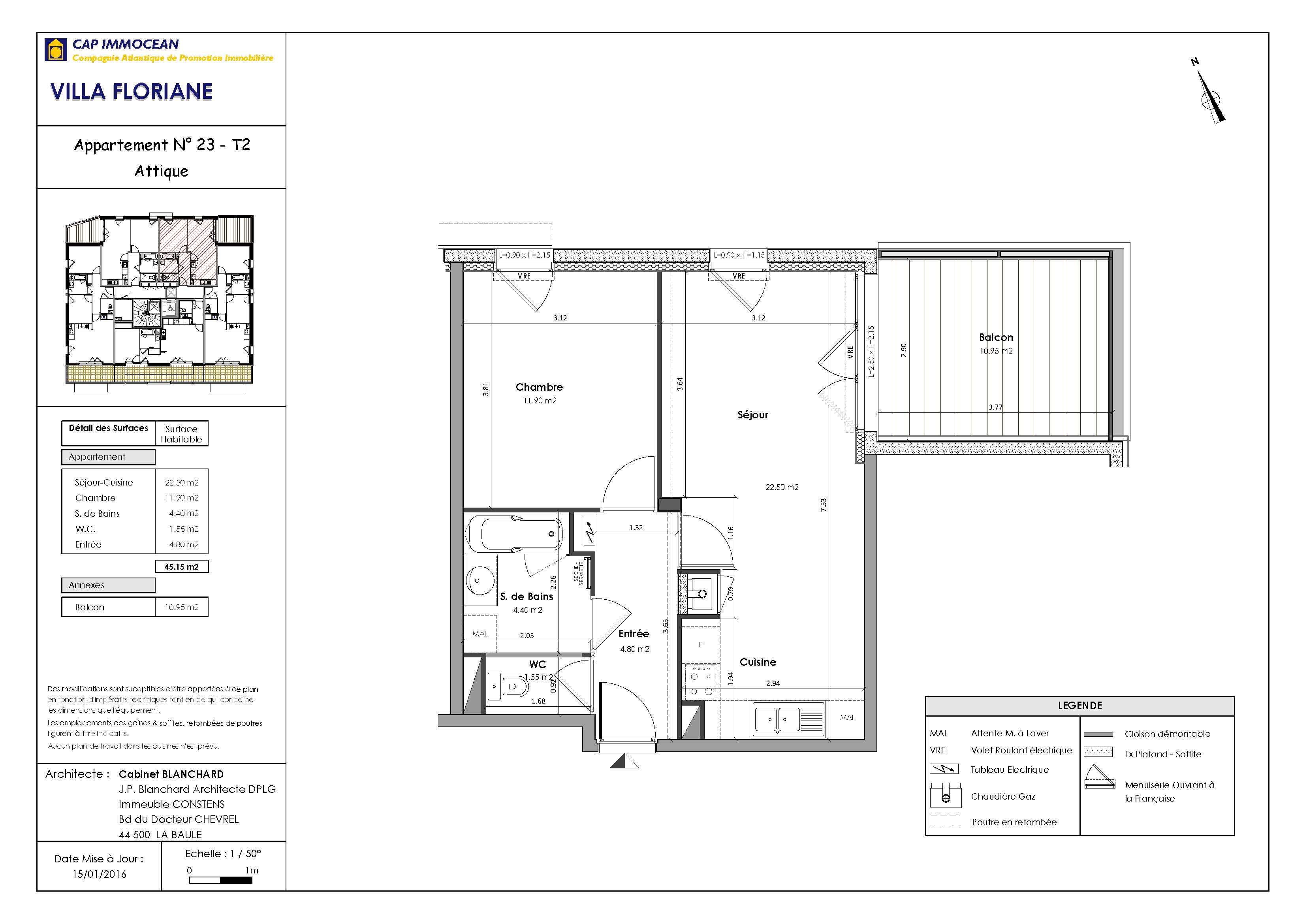
À LA BAULE-ESCOUBLAC, Situé au 2ème étage et dernier étage avec ascenseur, de la résidence "VILLA FLORIANE" à l'architecture contemporaine, qui vous offrira un confort de vie au cour de la baule les pins, à proximité de la gare et du centre ville. Nous vous proposons un appartement de type T2 n° 23 de 45.15 m²,comprenant : une entrée, un séjour avec cuisine aménagée et équipée (plaque/hotte) donnant sur un balcon de 10.95m², une chambre, une salle de bain et des WC séparés À l'extérieur, une place de stationnement n°7 et au RDC un local n°L7. Eau chaude et chauffage électrique, eau froide, entretien parties communes, entretien ascenseur et espaces verts communs, compris dans les provisions sur charges mensuelles et donnant lieu à une régularisation annuelle. Les honoraires de location euros TTC (à la charge du locataire) incluent le montant de rédaction des états des lieux facturé pour 136,00 euros TTC, après réalisation lors de l'entrée dans les lieux.


Voir le plan du lot


Numéro commercial : 23

Référence du bien : 0032055


Caractéristique(s) de l'immeuble

  • Résidence sécurisée

  • Antenne TV

  • Ascenseur

  • Espaces verts

  • Local à vélo


Caractéristique(s) du logement

  • Surface habitable : 45,15 m²

  • Balcon (10,95 m²)

  • 2ème étage

  • Eau chaude individuelle - Chaudière à gaz

  • Chauffage individuel - Chaudière à gaz

  • Cuisine : Aménagée

  • Placard(s)


Annexes

  • Parking


Conditions financières

  • Loyer hors charges : 522 EUR

  • Montant du dépôt de garantie : 522 EUR

  • Provision sur charges : 54 EUR

  • Honoraires TTC à la charge du locataire : 455 EUR

  • Honoraires TTC états des lieux locataire : 136 EUR


Bilan énergétique


Performance du logementGaz à effet de serre

Échelle de performance énergétique s'étalant du niveau A, correspondant à un logement extrêmement performant, au niveau G, correspondant à un logement extrêmement peu performant. Les niveaux F et G sont qualifiés de passoires énergétiques. La consommation (énergie primaire) est de 97 kWh/m².an et est associée à une émission de 18 kg de dioxyde de carbone/m².an (voir détail de l'émission de gaz à effet de serre ci-après), cela correspond à une performance énergétique de niveau C.

Échelle d'émissions des gaz à effet de serre s'étalant du niveau A, correspondant à peu d'émission de CO2, au niveau G, correspondant à des émissions très importantes. Avec une émission de 18 kg de dioxyde de carbone/m²/an, l'émission de gaz à effet de serre est de niveau C.


Date du dernier diagnostic : 23/10/2024
Montant estimé des dépenses annuelles d'énergie pour un usage standard

Les coûts sont estimés en fonction des caractéristiques du logement et pour une utilisation sur 5 usages (chauffage, eau chaude sanitaire, climatisation, éclairage, auxiliaires).


entre 480 EUR et 700 EUR par an


Prix moyens des énergies indexés sur les années 2021, 2022 et 2023 (abonnements compris)

Etat des risques
Consultez l'état des risques réglementés pour l'information des acquéreurs et des locataires ici
Les informations sur les risques auxquels ce bien est exposé sont disponibles sur le site Géorisques : www.georisques.gouv.fr
Localisation du bien
Vos temps de trajet moyen
  • Ajouter un point d'intérêt personnalisé
 Nature du lieuAdresseDurée du trajet en voitureDurée du trajet en transport en communDurée du trajet en véloDurée du trajet à piedActions    Actions

Ce bien a attiré votre attention ?

Ajoutez vos emplacements préférés pour calculer le temps de trajet depuis ce bien.

Connexion

Pas encore de compte ? Créez un espace utilisateur AFEDIM.

OK X
Nous contacter

Pour toute demande de renseignements complémentaires, demander à visiter le bien ou tout simplement déposer votre dossier de location...
N'hésitez pas à nous contacter !