Louer Détail de l'annonce

Location Appartement 2 pièces de 43m² à 605 EUR/mois à HAUBOURDIN

ESPRIT NATURE - Appartement - 2 pièces
A propos de ce bien :

605EUR / mois

Charges comprises

  • Appartement
  • 4 RUE DE LA MURISSERIE
    59320 HAUBOURDIN
  • 2 pièces
  • 43,17m²
  • 1er étage
  • Disponibilité immédiate
  • DPE : C

Location soumise au respect d'un plafond de ressources/revenus

Calculer le plafond de ressources

Ce bien vous est proposé par notre filiale :

AFEDIM Gestion
Mes notes

Ce bien a attiré votre attention ?

Retrouvez vos notes personnelles en vous connectant à votre espace.

Connexion

Pas encore de compte ? Créez un espace utilisateur AFEDIM.

Description du logement

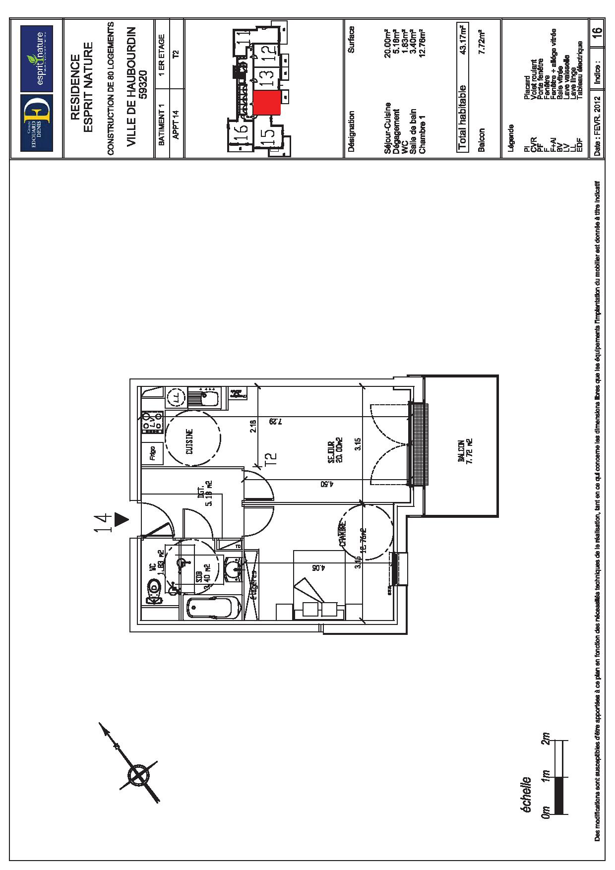
HAUBOURDIN, dans la résidence ESPRIT NATURE, nous vous proposons un appartement T2 n°14 de 43.17 m². Situé au 1er étage du bâtiment 1, il comprend un séjour de 20m² avec coin cuisine donnant sur un balcon de 7.72m² exposé Sud/Est, une chambre de 12m² avec étagères, une salle de bains et un WC indépendant. Un cellier n°2 et une place de parking extérieure n°02 sont à disposition. Chauffage et eau chaude individuel gaz. Entretien parties communes et espaces verts communs, compris dans les provisions sur charges mensuelles et donnant lieu à une régularisation annuelle. Les honoraires de location sont facturés directement au locataire par le partenaire pour 431 EUR TTC. Quant aux honoraires de rédaction des états des lieux, ils sont facturés par AFEDIM Gestion pour 129 EUR TTC, après réalisation, lors de l'entrée dans les lieux. Plus de détails sur notre site internet AFEDIM.


Voir le plan du lot


Numéro commercial : 14

Référence du bien : 0025757


Caractéristique(s) de l'immeuble

  • Antenne TV


Caractéristique(s) du logement

  • Surface habitable : 43,17 m²

  • Balcon (7,72 m²)

  • 1er étage

  • Eau chaude individuelle - Chaudière à gaz

  • Chauffage individuel - Chaudière à gaz

  • Cuisine : Non aménagée et non équipée

  • Orientation : Sud-Est

  • Placard(s)


Annexes

  • Parking

  • Cave


Conditions financières

  • Loyer hors charges : 539 EUR

  • Montant du dépôt de garantie : 539 EUR

  • Provision sur charges : 66 EUR

  • Honoraires TTC à la charge du locataire : 431 EUR

  • Honoraires TTC états des lieux locataire : 129 EUR


Bilan énergétique


Performance du logementGaz à effet de serre

Échelle de performance énergétique s'étalant du niveau A, correspondant à un logement extrêmement performant, au niveau G, correspondant à un logement extrêmement peu performant. Les niveaux F et G sont qualifiés de passoires énergétiques. La consommation (énergie primaire) est de 86 kWh/m².an et est associée à une émission de 15 kg de dioxyde de carbone/m².an (voir détail de l'émission de gaz à effet de serre ci-après), cela correspond à une performance énergétique de niveau C.

Échelle d'émissions des gaz à effet de serre s'étalant du niveau A, correspondant à peu d'émission de CO2, au niveau G, correspondant à des émissions très importantes. Avec une émission de 15 kg de dioxyde de carbone/m²/an, l'émission de gaz à effet de serre est de niveau C.


Date du dernier diagnostic : 29/03/2023
Montant estimé des dépenses annuelles d'énergie pour un usage standard

Les coûts sont estimés en fonction des caractéristiques du logement et pour une utilisation sur 5 usages (chauffage, eau chaude sanitaire, climatisation, éclairage, auxiliaires).


entre 364 EUR et 492 EUR par an


Prix moyens des énergies indexés sur l'année 2023 (abonnement compris)

Etat des risques
Consultez l'état des risques réglementés pour l'information des acquéreurs et des locataires ici
Les informations sur les risques auxquels ce bien est exposé sont disponibles sur le site Géorisques : www.georisques.gouv.fr
Localisation du bien
Vos temps de trajet moyen
  • Ajouter un point d'intérêt personnalisé
 Nature du lieuAdresseDurée du trajet en voitureDurée du trajet en transport en communDurée du trajet en véloDurée du trajet à piedActions    Actions

Ce bien a attiré votre attention ?

Ajoutez vos emplacements préférés pour calculer le temps de trajet depuis ce bien.

Connexion

Pas encore de compte ? Créez un espace utilisateur AFEDIM.

OK X
Nous contacter

Pour toute demande de renseignements complémentaires, demander à visiter le bien ou tout simplement déposer votre dossier de location...
N'hésitez pas à nous contacter !


Autres annonces à proximité