Louer Détail de l'annonce

Location Appartement 2 pièces de 43m² à 717 EUR/mois à GARGENVILLE

JARDINS DE GARGENVILLE - Appartement - 2 pièces
A propos de ce bien :

717,01EUR / mois

Charges comprises

  • Appartement
  • 18 RUE SIMONE VEIL
    78440 GARGENVILLE
  • 2 pièces
  • 43m²
  • 3ème étage
  • Disponible dès le 16/03/2026
  • DPE : B

Location soumise au respect d'un plafond de ressources/revenus

Calculer le plafond de ressources

Ce bien vous est proposé par notre filiale :

AFEDIM Gestion
Mes notes

Ce bien a attiré votre attention ?

Retrouvez vos notes personnelles en vous connectant à votre espace.

Connexion

Pas encore de compte ? Créez un espace utilisateur AFEDIM.

Description du logement

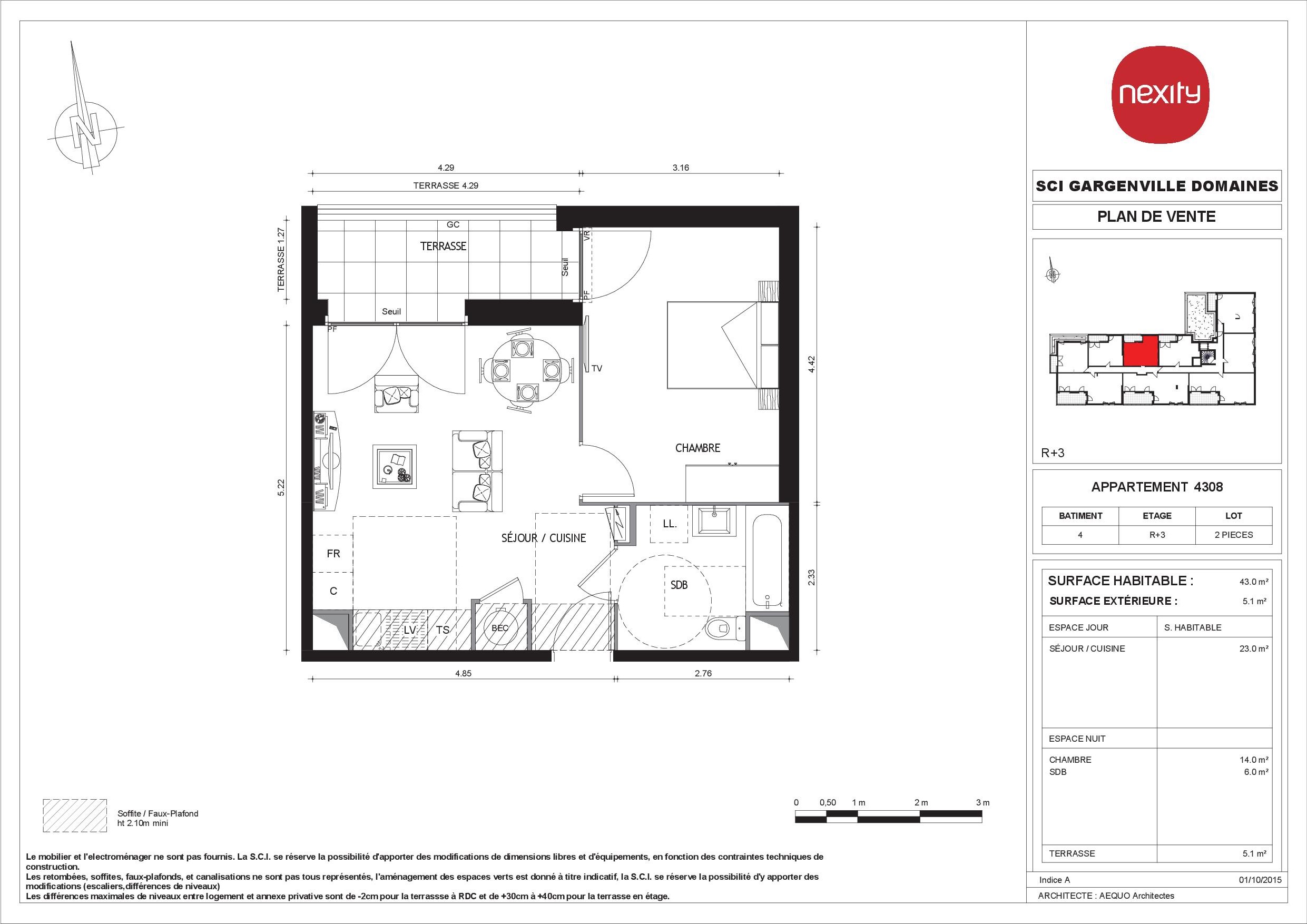
A Gargenville, dans la Résidence Jardins de Gargenville, nous vous proposons un appartement T2 n°4308 situé au rez-de-chaussée du bâtiment 4 disposant d'une terrasse de 5.10m². Il se compose d'un séjour de 23,00m² avec cuisine aménagée et équipée, d'une belle chambre de 14.00, d'une salle de bains avec baignoire, vasque avec miroir et WC. Au sous-sol du bâtiment 6, un emplacement de stationnement n°62. Chauffage et eau chaude individuels électriques. Eau froide, entretien des parties communes et des espaces verts compris dans les provisions sur charges mensuelles et donnant lieu à une régularisation annuelle. Disponible le 03/04/2026 Les honoraires de location TTC (à charge du locataire) incluent le montant de rédaction des états des lieux facturés 130.00 EUR TTC, après la réalisation lors de l'entrée dans les lieux. Pour plus de détails sur ce logement, vous pouvez consulter la fiche descriptive de ce bien, sur votre site internet AFEDIM.


Voir le plan du lot


Numéro commercial : 4308

Référence du bien : 0032925


Caractéristique(s) de l'immeuble

  • Résidence sécurisée

  • Ascenseur

  • Espaces verts

  • Local à vélo


Caractéristique(s) du logement

  • Surface habitable : 43 m²

  • Terrasse (5,00 m²)

  • 3ème étage

  • Eau chaude individuelle - électrique

  • Chauffage individuel - Electrique

  • Cuisine : Non aménagée et non équipée

  • Placard(s)


Annexes

  • Parking


Conditions financières

  • Loyer hors charges : 647,01 EUR

  • Montant du dépôt de garantie : 647,01 EUR

  • Provision sur charges : 70 EUR

  • Honoraires TTC à la charge du locataire : 433 EUR

  • Honoraires TTC états des lieux locataire : 130 EUR


Bilan énergétique


Performance du logementGaz à effet de serre

Échelle de performance énergétique s'étalant du niveau A, correspondant à un logement extrêmement performant, au niveau G, correspondant à un logement extrêmement peu performant. Les niveaux F et G sont qualifiés de passoires énergétiques. La consommation (énergie primaire) est de 107 kWh/m².an et est associée à une émission de 3 kg de dioxyde de carbone/m².an (voir détail de l'émission de gaz à effet de serre ci-après), cela correspond à une performance énergétique de niveau B.

Échelle d'émissions des gaz à effet de serre s'étalant du niveau A, correspondant à peu d'émission de CO2, au niveau G, correspondant à des émissions très importantes. Avec une émission de 3 kg de dioxyde de carbone/m²/an, l'émission de gaz à effet de serre est de niveau A.


Date du dernier diagnostic : 25/02/2025
Montant estimé des dépenses annuelles d'énergie pour un usage standard

Les coûts sont estimés en fonction des caractéristiques du logement et pour une utilisation sur 5 usages (chauffage, eau chaude sanitaire, climatisation, éclairage, auxiliaires).


entre 440 EUR et 640 EUR par an


Prix moyens des énergies indexés sur l'année 2021 (abonnement compris)

Etat des risques
Consultez l'état des risques réglementés pour l'information des acquéreurs et des locataires ici
Les informations sur les risques auxquels ce bien est exposé sont disponibles sur le site Géorisques : www.georisques.gouv.fr
Localisation du bien
Vos temps de trajet moyen
  • Ajouter un point d'intérêt personnalisé
 Nature du lieuAdresseDurée du trajet en voitureDurée du trajet en transport en communDurée du trajet en véloDurée du trajet à piedActions    Actions

Ce bien a attiré votre attention ?

Ajoutez vos emplacements préférés pour calculer le temps de trajet depuis ce bien.

Connexion

Pas encore de compte ? Créez un espace utilisateur AFEDIM.

OK X
Nous contacter

Pour toute demande de renseignements complémentaires, demander à visiter le bien ou tout simplement déposer votre dossier de location...
N'hésitez pas à nous contacter !