Louer Détail de l'annonce

Location Appartement 2 pièces de 39m² à 543 EUR/mois à ESSEY LES NANCY

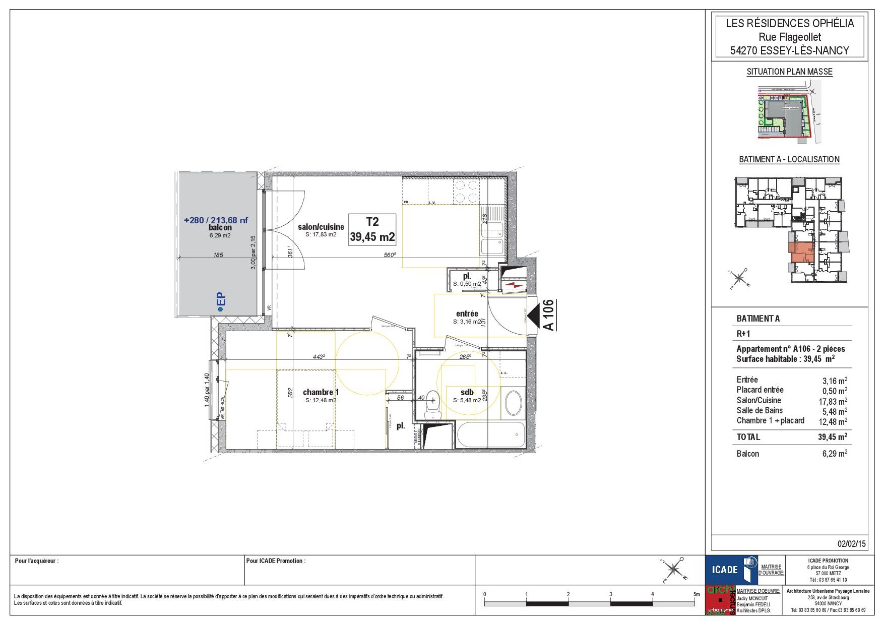
OPHELIA - Appartement - 2 pièces
A propos de ce bien :

543EUR / mois

Charges comprises

  • Appartement
  • 22 ALLEE FRANCOIS FLAGEOLLET
    54270 ESSEY LES NANCY
  • 2 pièces
  • 39,45m²
  • 1er étage
  • Disponibilité immédiate
  • DPE : A

Location soumise au respect d'un plafond de ressources/revenus

Calculer le plafond de ressources

Ce bien vous est proposé par notre filiale :

AFEDIM Gestion
Mes notes

Ce bien a attiré votre attention ?

Retrouvez vos notes personnelles en vous connectant à votre espace.

Connexion

Pas encore de compte ? Créez un espace utilisateur AFEDIM.

Description du logement

A ESSEY LES NANCY, résidence OPHELIA, nous vous proposons un appartement T2 n°A106 de 39,45m² au 1er étage avec ascenseur du bâtiment A. Il comprend une entrée avec placard, une pièce à vivre avec cuisine A/E (meubles hauts et bas, plaque de cuisson, four et hotte) donnant sur un balcon, une chambre avec placard et d'une salle de bains avec WC. A l'extérieur, un parking n°PE8. Eau chaude et chauffage individuels (Abonnement à souscrire auprès de CALOON). Eau froide, entretien des parties communes, ascenseur et des espaces verts compris dans les provisions sur charges mensuelles et donnant lieu à une régularisation annuelle. Les honoraires de location incluent le montant de rédaction des états des lieux (part locataire) facturé pour 118 euros TTC, après réalisation lors de l'entrée dans les lieux. Pour plus de détails sur ce logement, vous pouvez consulter la fiche descriptive de ce bien, sur notre site internet AFEDIM-locations.


Voir le plan du lot


Numéro commercial : A106

Référence du bien : 0026804


Caractéristique(s) de l'immeuble

  • Résidence sécurisée

  • Antenne TV

  • Ascenseur

  • Espaces verts


Caractéristique(s) du logement

  • Surface habitable : 39,45 m²

  • Balcon (6,29 m²)

  • 1er étage

  • Eau chaude collective - Chaudière à gaz

  • Chauffage collectif - Chaudière à gaz

  • Cuisine : Aménagée et équipée

  • Orientation : Sud-Est

  • Placard(s)


Annexes

  • Parking


Conditions financières

  • Loyer hors charges : 484 EUR

  • Montant du dépôt de garantie : 484 EUR

  • Provision sur charges : 59 EUR

  • Honoraires TTC à la charge du locataire : 318 EUR

  • Honoraires TTC états des lieux locataire : 119 EUR


Bilan énergétique


Performance du logementGaz à effet de serre

Échelle de performance énergétique s'étalant du niveau A, correspondant à un logement extrêmement performant, au niveau G, correspondant à un logement extrêmement peu performant. Les niveaux F et G sont qualifiés de passoires énergétiques. La consommation (énergie primaire) est de 54 kWh/m².an et est associée à une émission de 1 kg de dioxyde de carbone/m².an (voir détail de l'émission de gaz à effet de serre ci-après), cela correspond à une performance énergétique de niveau A.

Échelle d'émissions des gaz à effet de serre s'étalant du niveau A, correspondant à peu d'émission de CO2, au niveau G, correspondant à des émissions très importantes. Avec une émission de 1 kg de dioxyde de carbone/m²/an, l'émission de gaz à effet de serre est de niveau A.


Date du dernier diagnostic : 02/09/2025
Montant estimé des dépenses annuelles d'énergie pour un usage standard

Les coûts sont estimés en fonction des caractéristiques du logement et pour une utilisation sur 5 usages (chauffage, eau chaude sanitaire, climatisation, éclairage, auxiliaires).


entre 350 EUR et 510 EUR par an


Prix moyens des énergies indexés sur l'année 2023 (abonnement compris)

Etat des risques
Consultez l'état des risques réglementés pour l'information des acquéreurs et des locataires ici
Les informations sur les risques auxquels ce bien est exposé sont disponibles sur le site Géorisques : www.georisques.gouv.fr
Localisation du bien
Vos temps de trajet moyen
  • Ajouter un point d'intérêt personnalisé
 Nature du lieuAdresseDurée du trajet en voitureDurée du trajet en transport en communDurée du trajet en véloDurée du trajet à piedActions    Actions

Ce bien a attiré votre attention ?

Ajoutez vos emplacements préférés pour calculer le temps de trajet depuis ce bien.

Connexion

Pas encore de compte ? Créez un espace utilisateur AFEDIM.

OK X
Nous contacter

Pour toute demande de renseignements complémentaires, demander à visiter le bien ou tout simplement déposer votre dossier de location...
N'hésitez pas à nous contacter !


Autres annonces à proximité