Louer Détail de l'annonce

Location Appartement 1 pièce de 33m² à 531 EUR/mois à CLERMONT FERRAND

STUDIO GABRIEL - Appartement - 1 pièce
A propos de ce bien :

530,78EUR / mois

Charges comprises

  • Appartement
  • 8 PLACE HENRI DUNANT
    63000 CLERMONT FERRAND
  • 1 pièce
  • 33m²
  • 4ème étage
  • Disponible dès le 28/02/2026
  • DPE : C

Location soumise au respect d'un plafond de ressources/revenus

Calculer le plafond de ressources

Ce bien vous est proposé par notre filiale :

AFEDIM Gestion
Mes notes

Ce bien a attiré votre attention ?

Retrouvez vos notes personnelles en vous connectant à votre espace.

Connexion

Pas encore de compte ? Créez un espace utilisateur AFEDIM.

Description du logement

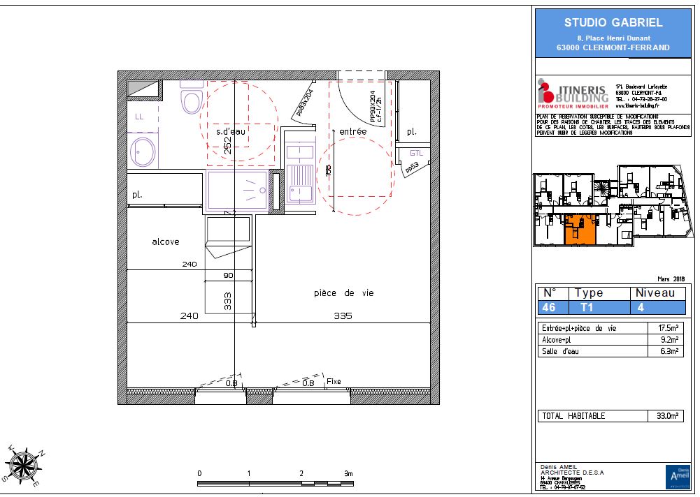
A CLERMONT FERRAND, proche commerces et commodités dans la Résidence STUDIO GABRIEL, nous vous proposons un appartement T1 n°46 de 33m² au quatrième étage. L'appartement possède une entrée, un placard, une pièce de vie de 17.50m², une alcôve de 9.20m² et une salle d'eau de 6.30m² avec douche. Eau froide et eau chaude individuelles. Chauffage par chaudière à gaz collectif, l'entretien parties communes, ascenseur et espaces verts communs, compris dans les provisions sur charges mensuelles et donnant lieu à une régularisation annuelle. Les honoraires de location TTC (à la charge du locataire) incluent le montant de rédaction des états des lieux facturé pour 99 euros TTC, après réalisation lors de l'entrée dans les lieux. Plus de détails sur notre site AFEDIM.


Voir le plan du lot


Numéro commercial : 46

Référence du bien : 0047444


Caractéristique(s) de l'immeuble

  • Résidence sécurisée

  • Fibre optique

  • Ascenseur

  • Espaces verts

  • Local à vélo


Caractéristique(s) du logement

  • Surface habitable : 33 m²

  • 4ème étage

  • Eau chaude collective - Chaudière à gaz

  • Chauffage collectif - Chaudière à gaz

  • Orientation : Nord-Ouest

  • Placard(s)


Conditions financières

  • Loyer hors charges : 437,78 EUR

  • Montant du dépôt de garantie : 437,78 EUR

  • Provision sur charges : 93 EUR

  • Honoraires TTC à la charge du locataire : 266 EUR

  • Honoraires TTC états des lieux locataire : 99 EUR


Bilan énergétique


Performance du logementGaz à effet de serre

Échelle de performance énergétique s'étalant du niveau A, correspondant à un logement extrêmement performant, au niveau G, correspondant à un logement extrêmement peu performant. Les niveaux F et G sont qualifiés de passoires énergétiques. La consommation (énergie primaire) est de 146 kWh/m².an et est associée à une émission de 26 kg de dioxyde de carbone/m².an (voir détail de l'émission de gaz à effet de serre ci-après), cela correspond à une performance énergétique de niveau C.

Échelle d'émissions des gaz à effet de serre s'étalant du niveau A, correspondant à peu d'émission de CO2, au niveau G, correspondant à des émissions très importantes. Avec une émission de 26 kg de dioxyde de carbone/m²/an, l'émission de gaz à effet de serre est de niveau C.


Date du dernier diagnostic : 09/12/2025
Montant estimé des dépenses annuelles d'énergie pour un usage standard

Les coûts sont estimés en fonction des caractéristiques du logement et pour une utilisation sur 5 usages (chauffage, eau chaude sanitaire, climatisation, éclairage, auxiliaires).


entre 278 EUR et 278 EUR par an


Prix moyens des énergies indexés sur les années 2021, 2022 et 2023 (abonnements compris)

Etat des risques
Consultez l'état des risques réglementés pour l'information des acquéreurs et des locataires ici
Les informations sur les risques auxquels ce bien est exposé sont disponibles sur le site Géorisques : www.georisques.gouv.fr
Localisation du bien
Vos temps de trajet moyen
  • Ajouter un point d'intérêt personnalisé
 Nature du lieuAdresseDurée du trajet en voitureDurée du trajet en transport en communDurée du trajet en véloDurée du trajet à piedActions    Actions

Ce bien a attiré votre attention ?

Ajoutez vos emplacements préférés pour calculer le temps de trajet depuis ce bien.

Connexion

Pas encore de compte ? Créez un espace utilisateur AFEDIM.

OK X
Nous contacter

Pour toute demande de renseignements complémentaires, demander à visiter le bien ou tout simplement déposer votre dossier de location...
N'hésitez pas à nous contacter !


Autres annonces à proximité