Louer Détail de l'annonce

Location Appartement 2 pièces de 43m² à 506 EUR/mois à CHALLANS

CLOSERIE - Appartement - 2 pièces
A propos de ce bien :

505,9EUR / mois

Charges comprises

  • Appartement
  • BAT A - 18 RUE DU BOIS CENE
    85300 CHALLANS
  • 2 pièces
  • 43,25m²
  • 1er étage
  • Disponible dès le 01/04/2026
  • DPE : B

Location soumise au respect d'un plafond de ressources/revenus

Calculer le plafond de ressources

Ce bien vous est proposé par notre filiale :

AFEDIM Gestion
Mes notes

Ce bien a attiré votre attention ?

Retrouvez vos notes personnelles en vous connectant à votre espace.

Connexion

Pas encore de compte ? Créez un espace utilisateur AFEDIM.

Description du logement

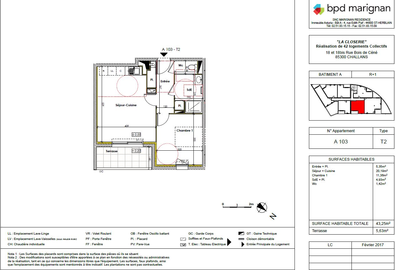
A CHALLANS, dans la résidence La Closerie nous vous y proposons un appartement T2 n°A103 d'une superficie de 43.69m² situé au 1er étage, comprenant : un séjour-cuisine de 20.19m² donnant sur une terrasse de 5.63m², une chambre de 11.36m², une salle d'eau avec placard, WC séparés. Au rez-de-chaussée un box n°7 et un local vélo n°7. Loyer accessoire stationnement 45.00 EUR en sus du loyer de 360.00 EUR (soit 405 EUR hors charge). Eau chaude et chauffage par chaudière gaz individuel. Entretien parties communes, entretien ascenseur et espaces verts communs, compris dans les provisions sur charges mensuelles et donnant lieu à une régularisation annuelle. Les honoraires de location TTC (à la charge du locataire) incluent le montant de rédaction des états des lieux facturé pour 129.00 euros TTC, après réalisation lors de l'entrée dans les lieux. . Pour plus de détails rendez-vous sur notre site internet Afedim Disponible immédiatement


Voir le plan du lot


Numéro commercial : A103

Référence du bien : 0036482


Caractéristique(s) de l'immeuble

  • Résidence sécurisée

  • Antenne TV

  • Ascenseur

  • Espaces verts

  • Local à vélo


Caractéristique(s) du logement

  • Surface habitable : 43,25 m²

  • Terrasse (5,00 m²)

  • 1er étage

  • Eau chaude individuelle - Chaudière à gaz

  • Chauffage individuel - Chaudière à gaz

  • Cuisine : Non aménagée et non équipée


Annexes

  • Parking

  • Garage à vélos


Conditions financières

  • Loyer hors charges : 402,32 EUR

  • Montant du dépôt de garantie : 402,32 EUR

  • Provision sur charges : 55 EUR

  • Honoraires TTC à la charge du locataire : 349 EUR

  • Honoraires TTC états des lieux locataire : 131 EUR


Bilan énergétique


Classe énergieIndice d'émission de gaz à effet de serre

Classe énergie

Logement économe
0 à 50
51 à 90
59 kWh/m².an
91 à 150
151 à 230
231 à 330
331 à 450
451 et +
Logement énergivore

Indice d'émission de gaz à effet de serre (GES)

Faible émission de GES
0 à 5
6 à 10
11 à 20
13 kg/m².an
21 à 35
36 à 55
56 à 80
81 et +
Forte émission de GES

Date du dernier diagnostic (DPE Ancienne Version): 08/07/2019
Etat des risques
Consultez l'état des risques réglementés pour l'information des acquéreurs et des locataires ici
Les informations sur les risques auxquels ce bien est exposé sont disponibles sur le site Géorisques : www.georisques.gouv.fr
Localisation du bien
Vos temps de trajet moyen
  • Ajouter un point d'intérêt personnalisé
 Nature du lieuAdresseDurée du trajet en voitureDurée du trajet en transport en communDurée du trajet en véloDurée du trajet à piedActions    Actions

Ce bien a attiré votre attention ?

Ajoutez vos emplacements préférés pour calculer le temps de trajet depuis ce bien.

Connexion

Pas encore de compte ? Créez un espace utilisateur AFEDIM.

OK X
Nous contacter

Pour toute demande de renseignements complémentaires, demander à visiter le bien ou tout simplement déposer votre dossier de location...
N'hésitez pas à nous contacter !